
Архитектура для образования. Пять дипломных проектов, выполненных студентами бакалавриата Архитектурной школы МАРШ
Дипломная студия «Новгород» существует в бакалавриате МАРШ четвертый год. На этот раз проект «Между собакой и волком» был посвящен модусам сосуществования природы и человека: изучению архитектуры в ландшафте, то есть в природном окружении, и ландшафта вокруг архитектуры. При этом центральной проблемой студии было проектирование дидактического пространства — то есть пространства, которое само учит тех, кто в нем находится.
Студентам предложили создать лицей — учебное заведение на 20–30 человек в Павловском парке под Санкт-Петербургом. Особенности функциональной программы каждый автор сформулировал самостоятельно.
Для этого студенты исследовали природу образования, исходя из того, что образование — это не только процесс обучения, но и процесс возникновения образа. Представив себе пространства и объемы, в которых происходит обучение, они пытались разобраться, чему и как могут научить человека архитектура, индивидуальный стиль или особенная деталь.
Три поездки в Павловский парк помогли увидеть его в разные сезоны. Осенью студенты знакомились с тремя участками, над которыми работали, проанализировали взаимодействие существующих объектов парковой архитектуры с ландшафтом ― и собрали альбом исследования и макеты генеральных планов. Зимой ― сравнивали осенние наблюдения с новым снежным пейзажем, примеряли эскизы объектов и макеты комнат к зимнему ландшафту, проверяя видовые раскрытия из природной среды на архитектуру и изнутри архитектуры ― на природу.
Одна из особенностей методики студии заключается в том, что все финальные визуальные образы производятся исключительно методом встройки фотографий крупномасштабных макетов в фотографии места. Весной студенты фиксировали отдельные виды Павловского парка, из которых затем вместе с макетами, отснятыми в студии, комбинировали интерьер главного пространства с видом из окна и вид на здания из нескольких точек в парке.
Преподаватели: Кирилл Асс, Юрий Пальмин.Студенты: Андрей Астахов, Федор Большаков, Виктория Денисова, Cофья Добычина, Ася Заславская, Родион Истокский, Александра Казанджян, Зульфия Камалова, Марго Ким, Ульяна Кравченко, Екатерина Мищенко, Федор Полушкин, Екатерина Постоюк, Анна-Мария Степанова, Татьяна Страту.
Александра Казанджянпроект Лицея в Павловском парке. Дипломная студия «Новгород», МАРШ
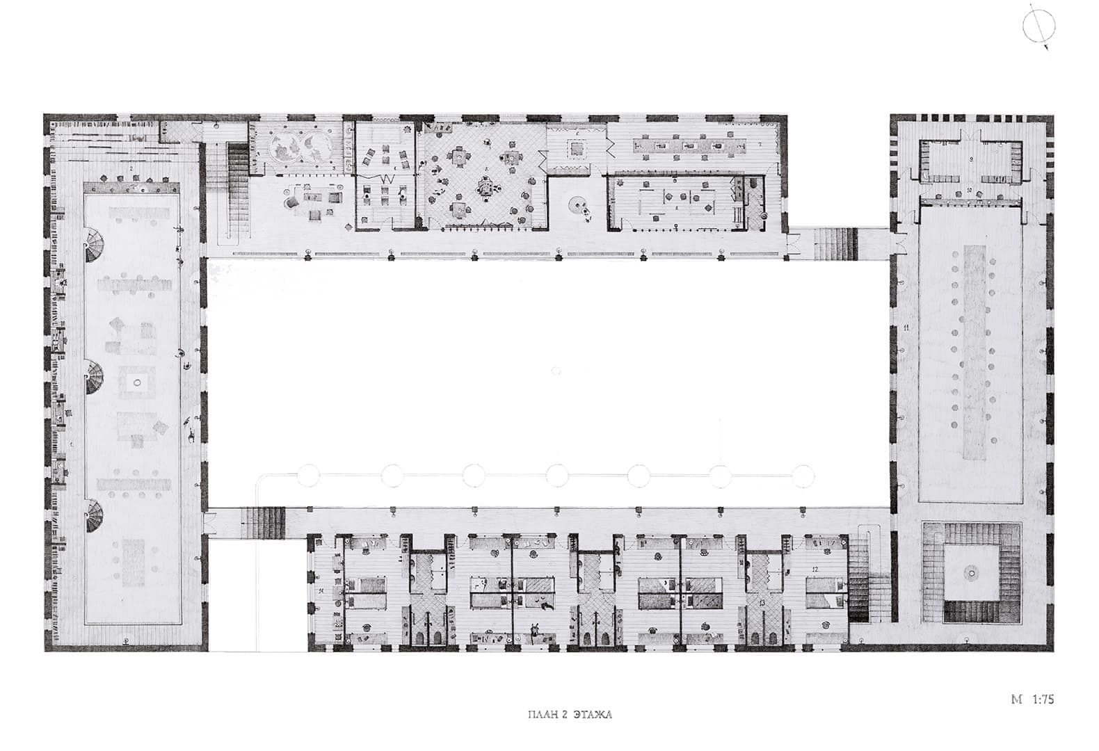
Лицей авторства Александры Казанджян расположен между двумя ивами в зоне садоводства Боде. Опираясь на принцип фигура и фон, Александра превратила стены зданий в фон для деревьев, таким образом вписав свой проект в окружающий ландшафт.
Лицей разделен на два Г-образных корпуса, которые стоят друг напротив друга и образуют замкнутый двор. В одном корпусе расположены учебные аудитории и библиотека — это здание обращено к поляне, а в другом располагаются жилые комнаты и столовая — это здание стоит на склоне и спрятано за можжевеловыми деревьями. Двор заканчивается балконом на холме, на котором дети сидят и свешивают ноги.
Здания реализованы с помощью каркасно-монолитной системы, которая, с одной стороны, позволяет создавать помещения любой планировки, а с другой, уравнивает новый лицей с окружающими парковыми зданиями — подобно существующим зданиям, лицей становится еще одной постоянной постройкой Павловского парка, константой в меняющемся пейзаже. Здания облицованы светлым известняком, усиливающим контраст между зданиями и стволами деревьев.
Классы учебного корпуса разбиты на три типа: в каждом есть главная плоскость, которая помогает в обучении. В лабораториях и мастерских такими плоскостями служат стены. В классах естественных наук главным становится пол — как, например, в кабинете географии: здесь на полу расположена карта мира. В классе для духовных наук акцент сделан на потолке: здесь есть окна в крыше, подобные оккулюсам.
Важная черта жилого корпуса — прорези на фасаде, связывающие две жилые комнаты, в которых живут дети старшего возраста. Александра назвали их «почтовыми ящиками» — через них можно незаметно обмениваться записками и другими важными предметами. Таким образом ниша (то есть пустота) наоборот подчеркивает важное место, а личные/частные отношения существуют в самой общественной плоскости (на фасаде), но при этом остаются недоступными для посторонних.
Екатерина Постоюкпроект Лицея в Павловском парке. Дипломная студия «Новгород», МАРШ
Идея создания лицея в парке парадоксальна. Павловский парк — не природа в ее обычном понимании, он функционирует, скорее, как музей. Это чувствуется в особом режиме входа на территорию, в правилах посещения и особом режиме доступности отдельных объектов внутри парка. Пространство с правилами и ограничениями и гибкая среда для обучения и формирования новых взглядов на первый взгляд не совместимы.
Само здание лицея как бы отвечает на этот парадокс. Внешне оно кажется закрытым, сдерживает давление внешнего контекста и, вписываясь в окружающий ландшафт, согласуется с его правилами. При этом внутри здания существует открытое пространство для обучения, взаимодействия и жизни.
Расположение здания обусловлено видами и сюжетами Павловского парка. Во время первой поездки в Павловск Екатерина Постоюк создала целый словарь сюжетов — простых элементов, которые складываются в более сложные и определяют правила формирования паркового ландшафта. Именно на основе этих правил впоследствии появилось пятно здания.
Рассматривая лицей как максимально свободное пространство, которое существует вне ограничений, но одновременно соответствует коду парка, Екатерина разработала замкнутое деревянное здание с внутренним двором для учеников и посетителей кафе, которое расположено в лицее.
Двор меняется и трансформируется в разные сезоны. Летом вся жизнь лицея и кафе выплескивается во двор и на террасу, обращенную к парку. Зимой двор существует внутри контура здания, сохраняя камерность.
Геометрия здания реагирует на высокие тонкие стволы сосен, которые его окружают: на фасаде ярко выражены вертикальные членения, а в интерьере в качестве материала активно используется дерево.
Зульфия Камаловапроект Лицея в Павловском парке. Дипломная студия «Новгород», МАРШ
Лицей Зульфии Камаловой устроен как плавная, спиральная, зацикливающаяся музыкальная композиция, состоящая из четырех зданий — дома для учебы, дома для жизни, дома для еды и башни для наблюдения за звездами. Каждое здание имеет разное количество этажей, которое растет от одного до четырех, подобно восходящему движению в музыке.
Перемещения в парке происходят от одной видовой точки к другой, поэтому и дома лицея создают новые виды относительно друг друга и окружающего ландшафта. Парк состоит из нескольких ландшафтных районов. Территория проектирования находится в промежуточном месте, между Парадным полем и Белой березой, ее окружают аллеи, ведущие к дворцу и кругу берез, а рядом располагается колонна княгини Ливен.
В ходе работы Зульфия составила словарь участка на основе его характеристик. Главными словами в нем стали «мерцание», «ворота», «отражение», «пустота» и «объем». «Пустота» — характеристика поля внутри участка проектирования. «Объем» — одинокая береза, стоящая в этом поле. «Ворота» — кулисы из деревьев, которые возникают в нескольких местах. «Отражение» — то, что видно в реке и в ландшафте, когда объекты меняют свои характеристики под влиянием друг друга. «Мерцание» — та характеристика, которая сопровождает путешественника на пути к участку.
В проекте Зульфии парк рассматривается не только как ландшафтное, но и как интерьерное пространство. Характеристики места и видов территории проявлены в зданиях: в их расположении в ландшафте и во внутреннем пространстве. Так, учебный дом — это пустота и объем, которые проявлены в интерьере; башня — отражение; жилой дом и трапезная — ворота, мерцание — эффект, возникающий благодаря взаимному расположению зданий.
Марго Кимпроект Лицея в Павловском парке. Дипломная студия «Новгород», МАРШ
Проект Марго Ким — попытка найти идеальный образ для системы образования. Марго спроектировала небольшой кампус в Павловском парке — академию, нацеленную на индивидуальное обучение каждого ученика и развитие его личного потенциала. При этом проект академии предполагает, что учеников не нужно делить по возрастам и закрытым классным комнатам.
Кампус состоит из трех одноэтажных зданий: академии (или учебного корпуса), студий для коворкинга (или мастерских) и жилого блока, в апартаментах которого живут по восемь человек разных возрастов, двое из которых - кураторы школы. В основе зданий лежит переосмысленная форма сарая: простая и максимально функциональная. При этом для строительства кампуса используется черное обугленное дерево.
Деревянные каркасы зданий опираются на бетонные элементы или руину. Но руина — не остатки некогда существовавшего здания, а фантазия, собранная из планов зданий, повлиявших на современное образование. Места соприкосновения материалов и тектонические узлы (например, базы или капители) подчеркиваются с помощью латунных элементов — таким образом сами детали служат дидактическими элементами.
Три здания выстроены вокруг небольшой площади, на которой ученики и кураторы академии встречаются и обмениваются опытом, а замкнутый жилой блок имеет собственный небольшой двор.
Здания не имеют жестких планировок — автор предполагает, что со временем они могут превратиться в галерею, офисы, творческие мастерские или пространства для ретрита: во время пандемии и роста технологий вопрос о необходимости школьных зданий и о том, нужны ли они в принципе, остается открытым.
Татьяна Стратупроект Лицея в Павловском парке. Дипломная студия «Новгород», МАРШ
Идея Татьяны Страту состоит в том, чтобы соединить жилое и учебное пространства, чтобы процесс творческого развития детей не ограничивался стенами школы, а продолжался постоянно.
Лицей спроектирован на участке, где сейчас находятся футбольное поле и каток: пространство с выровненным ландшафтом резко отличается от окружающего пейзажного парка. Татьяна выделила на участке пространства трех типов: общественную часть возле пруда и фонтана, живописную часть вдоль поляны и спортивную часть, на которой предполагается сохранить футбольное поле и каток, которыми смогут пользоваться ученики лицея.
Лицей появляется на пересечении этих зон. Здание из бетона и кирпича состоит из двух частей, связанных между собой теплой галереей. В качестве третьего материала используется дерево — из него сделаны дверные и оконные рамы.
Под влиянием видовых точек на здание и на парк из него, один объем повернут относительно другого на 5°. Если со стороны пруда форма здания помогает сформировать общественную площадь возле фонтана и собирается в более цельный объем, мерцающий сквозь деревья, то со стороны поляны оно растягивается и разбивается на отдельные объемы, которые можно рассматривать, прогуливаясь по живописной местности.
При работе над планом и программой здания за основу был взят рисунок плана, который сделал сын Татьяны: в нем он попытался объяснить, каким могло бы быть его идеальное место для учебы. Исходя из этих пожеланий, Татьяна сформировала в одной части здания центральную комнату, в которой дети учатся и взаимодействуют друг с другом. Это большая гостиная, библиотека и аудитория, в которой все функции смешиваются и трансформируются под нужды учеников в разное время дня. Из этого пространства открывается вид на поле.
Также вид на поле открывается из второй части здания, в которой проходят творческие занятие и в которой ученики живут. В теплой галерее, связывающей две части здания, есть лестница на второй этаж, ведущая в жилые комнаты учеников и двухсветные общие холлы для общения и отдыха вне основной учебы. Просыпаясь утром в своей личной комнате с видом на живописную часть Павловска, дети встречаются в общей комнате, обмениваются настроением с друзьями, спускаются по лестнице и проходят в столовую. Затем перемещаются в библиотеку для планирования учебного дня, остаются в пространстве для академических занятий и групповых уроков или перемещаются в другую часть здания, где занимаются творчеством и научными исследованиями.
Движение по пространствам максимально закольцовано, чтобы не создавать лабиринтов и глухих непросматриваемых зон для конфликтов.
Между двумя корпусами расположен небольшой внутренний дворик, где можно передохнуть и даже провести лекции на свежем воздухе.
Больше студенческих проектов МАРШ на выставке «МАРШоу».
Фотография обложки – проект Екатерины Постоюк.





















































