
Отсылки к русской архитектуре, искусству и ремеслам в интерьере ресторана — проект студии LEFTdesign
Главной задачей студии LEFTdesign было воплощение в интерьере атмосферы русской сказки и создание пространства, в котором реальность переплетается с вымыслом. Все решения, от орнаментов на входной плитке до крупных зеркал и росписей на стенах, направлены на формирование узнаваемого визуального образа ресторана. Особое внимание команда уделила сочетанию ремесленных техник, исторических мотивов и современной архитектурной пластики.
- Локация: Красноярск
- Площадь: 330 м²
- Авторы: студия LEFTdesign
- Фото: Ольга Мелекесцева
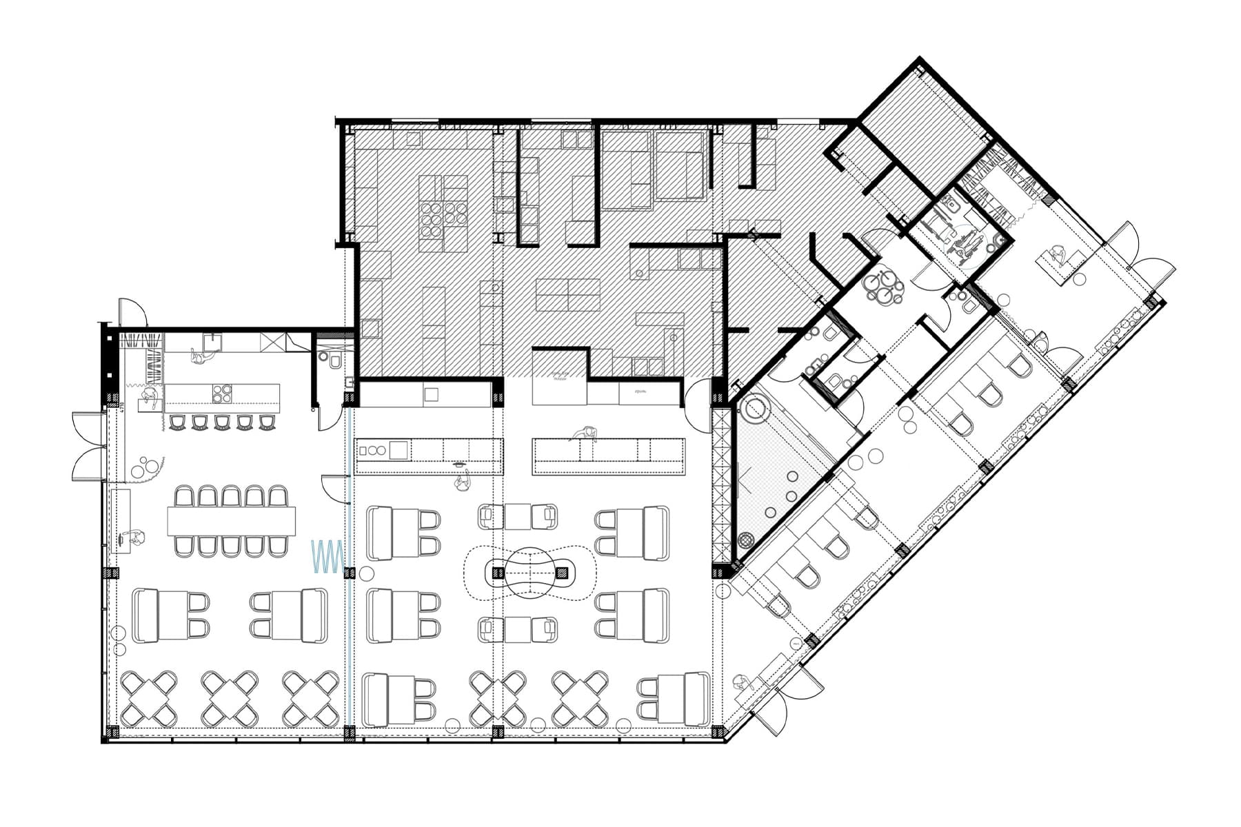
Планировку ресторана сделали легко трансформируемой. Подвижные перегородки позволяют отделить часть зала и выделить более приватную зону на случай семейных обедов и небольших торжеств. Легкие тканевые полотна помогают гибко зонировать помещение без утраты ощущения воздуха, а панорамные окна подчеркивают единение с окружающей природой. Дизайнеры руководствовались принципом максимальной открытости и визуальной глубины оформления. В проекте активно используются предметы с историей и элементы ручной работы. Центральным объектом стал портал-зеркало из нижегородского наличника конца XIX века, превращенный мастером из Сергиева Посада в настоящий арт-объект. Складные перегородки украсили рисунки по мотивам произведений Ивана Билибина. Выполненный на заказ камин с рельефом, напоминающим изразцы, плавно перетекает в сводчатый потолок. Этот объем выступил доминантой ресторана: благодаря ему здесь появляются отсылки к традициям, ремеслу и фольклору. Кроме того, именно он помог команде студии вписать несущую колонну в интерьер. Световое решение основано на образах русской архитектуры: светильники решены в виде окон крепостей, а вязаные торшеры и подвесы напоминают купола соборов сказочного города. Росписи на стенах и потолке реализованы в традиционной технике — за счет нее они выглядят объемными и живыми.















