Мягкий и расслабленный интерьер уютной квартиры с тремя спальнями — проект студии ZeWorkroom
Мягкий и расслабленный интерьер уютной квартиры с тремя спальнями — проект студии ZeWorkroom
Эта просторная квартира клиентов московской студии ZeWorkroom расположилась на верхнем этаже одной из башен жилого комплекса «Садовые кварталы». Главным «героем» проекта выступил панорамный вид из окон, который дизайнеры подчеркнули портальным обрамлением проемов. Заказчики мечтали о современном интерьере без ярких акцентов, который надолго сохранит свою актуальность. Учитывая их пожелания, команда обратилась к проверенным решениям — сочетанию скругленных форм и строгих линий, напоминающим об ушедших эпохах предметам и актуальным текстурам.
Локация: Москва
Площадь: 138 м²
Авторы: студия ZeWorkroom
Фото: Сергей Мельников
Ключевой фишкой интерьера стал коньячный оттенок дубовой древесины, который пронизывает все помещения и объединяет их природными фактурами. Этот сдержанный материал решили разбавить точечными вкраплениями нержавеющей стали и натуральным травертином, который деликатно вписан в обволакивающую палитру.
ZeWorkroomстудия архитектурного проектирования и дизайна интерьераВ целом, такой ретроспективный интерьер — это отличный способ создать уютную и стильную обстановку в доме, так как он сочетает в себе элементы прошлого и современности. Из этого микса создается неповторимый и уникальный дизайн.
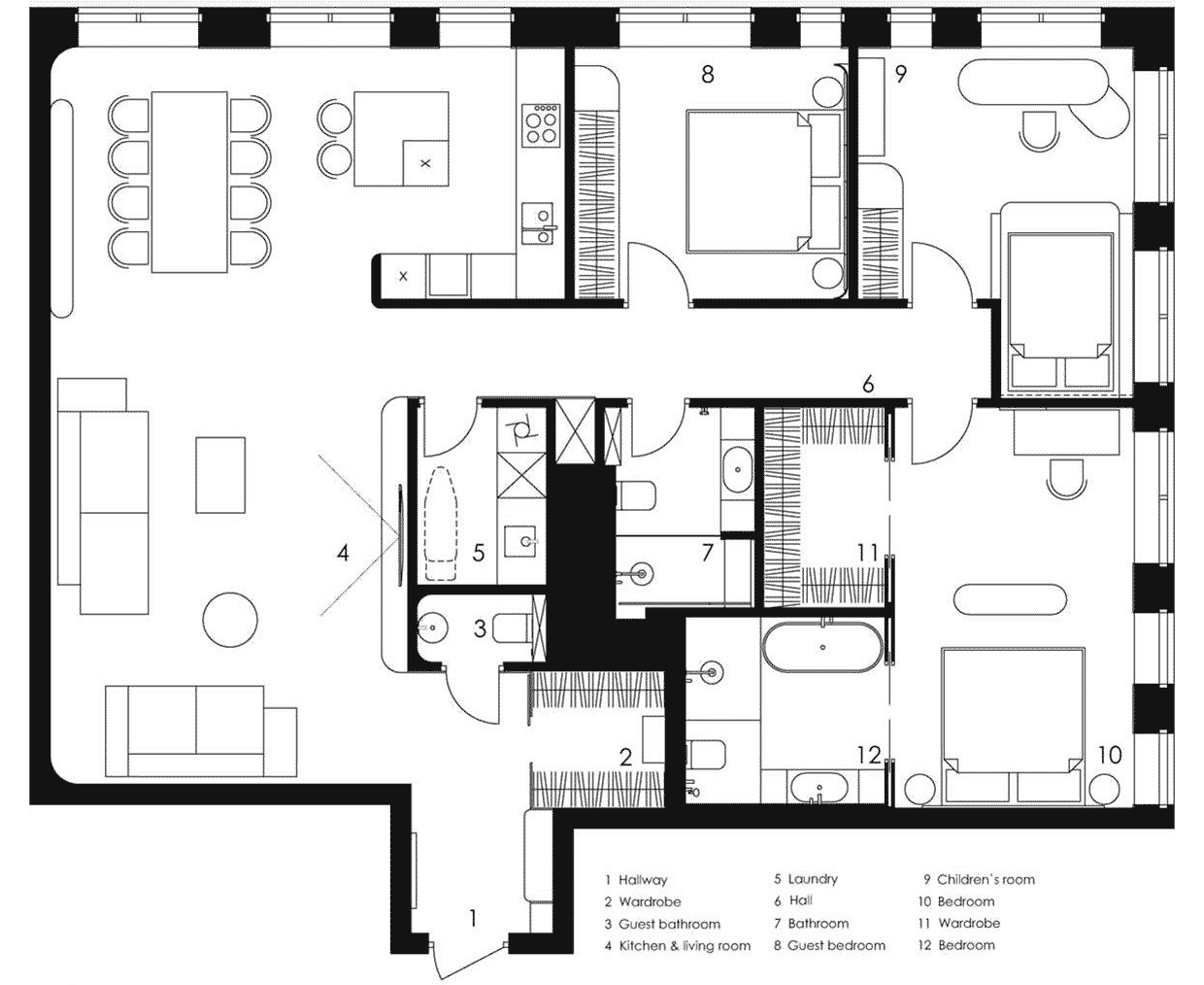
Планировка
Объект, с которым предстояло работать дизайнерам, был довольно удачным: угловая конфигурация квартиры подчеркивала вид из панорамных окон и наполняла пространство естественным светом. Она также подсказала будущее размещение функциональных зон: объединенная кухня-гостиная заняла самое большое помещение, которое просматривается прямо от входной группы. Во второй половине дома находятся спальни с прилегающими к ним санузлами. В детской и гостевой предусмотрены вместительные шкафы для одежды, а из мастер-спальни можно пройти в полноценную гардеробную. Расположенная здесь же ванная позволяет родителям собираться по утрам, не мешая остальным домочадцам.
Планировка квартиры с мебелью
Чтобы обеспечить визуальную чистоту интерьера, команда ZeWorkroom спроектировала новый санузел, небольшую систему хранения при входе, а стиральную и сушильную машины вынесла в отдельный хозблок.
Интерьер и решения
Палитра и контекст
Для отделки стен и потолков в этой квартире использовались эффектная декоративная штукатурка и матовая краска в теплом серовато-бежевом оттенке. Бархатистая текстура подчеркнула мягкие изгибы перегородок и элегантный рисунок напольного покрытия. Он дополняет мебель в бежевом и белом цветах.
Оживить сдержанную палитру оформления призвана выполненная на заказ мебель — например, для детской был спроектирован розовый письменный стол. Его подтон выбран не просто так: он поддерживает краски закатного неба по вечерам.
Кухня-гостиная
Любимым местом владельцев дома стало общественное пространство, соединившее в себе ключевые характерные детали интерьера. Команда ZeWorkroom гармонично разместила в помещении все мебельные композиции. Так, при входе в комнату создается ощущение пересекающих друг в друга объемов. Первой из них оказалась досуговая: пара больших диванов сформировала зону отдыха, а серый ковер визуально объединил белый торшер со скульптурами на журнальном столике. Напротив расположился один из самых ярких предметов интерьера — шкаф с винтажным настроением.
Его необычная конструкция со скругленными углами и полками-иллюминаторами отсылает к стилю mid-century modern. Реализацию решили не отдавать сторонним мастерским — ей занимался близкий студии бренд NW.BUREAU. Теперь этот эффектный элемент связывает между собой все части пространства и маскирует опуск потолка в коридоре. Для декора и искусства в него интегрирована мраморная полка. Тему природных материалов в оформлении продолжает угловой гарнитур со встроенной бытовой техникой — он с двух сторон окружил отдельно стоящий остров. Несмотря на небольшие габариты, он сильно увеличивает размеры рабочей поверхности.
Всю столовую группу тоже производили индивидуально под проект — лавка и стулья впоследствии вошли в коллекцию бренда NW.BUREAU. При их создании дизайнеры вдохновлялись образом традиционной русской лавки в современном прочтении. Дубовые опоры и текстильные сиденья удачно вписались в квартиру, поддержав обивку мягкой мебели.
Мастер-спальня
Мастер-спальня в проекте решена в теплых оттенках. Ее отличают два портала из шпона и рифленого стекла — они ведут в гардеробную и прилегающую к ней ванную. Фишкой двуспальной кровати здесь стало разделенное на две половины изголовье из фактурной ткани. Напротив него появилось компактное, но крайне функциональное рабочее место. Этой зоне дизайнеры постарались придать выразительности за счет изящного столика из светлого дерева.
Детская комната
Детская спальня решена в схожем с мастер-спальней стиле: ключевым отличием оказалась более красочная цветовая палитра с розовыми акцентами. Спальное место тут объединено с тумбой оригинальным способом: если изголовье плотно вписано в нишу возле окна, то в нижнюю решили встроить систему хранения с выдвижными ящиками. Регулировать освещенность комнаты позволяют горизонтальные жалюзи.
Ванные комнаты
Все санузлы квартиры оформлены в схожем стиле: бежевый керамогранит подчеркивает белую сантехнику, а перегородки из прозрачного стекла разделяют душевые зоны и умывальники.