
Новый взгляд на загородную архитектуру: «калифорнийская» ферма в Можайске
В своих проектах загородных домов молодое архитектурное бюро Skaträ отдает предпочтение натуральным материалам, лаконичным формам и нейтральной палитре. Недавно команде удалось поработать над организацией целого фермерского хозяйства в Московской области. Основатель и директор бюро Роман Андриянов рассказал Design Mate о новых тенденциях в дачной архитектуре и о том, как может выглядеть камерная гостиница и ферма в калифорнийском стиле.
Роман Андриянов основатель и директор
архитектурного бюро Skaträ
Сегодня все больше заказчиков загородных домов, дач и гостиниц отдают предпочтение минимализму. Жители больших городов устают от интенсивной нагрузки и быстрого темпа жизни: они стремятся к покою, уединению, ищут возможность отдохнуть от суеты. Именно поэтому яркие краски и обилие декоративных деталей становятся приметами прошлого — для отдыха и деловых встреч люди выбирают спокойную палитру и лаконичные конструкции. Чтобы добиться изящества и простоты, в отделке мы используем природные материалы: например, металл, деревянные панели или декоративную штукатурку с эффектом натурального камня. Определяясь с палитрой, лучше остановиться на мягких и приглушенных тонах, которые не напрягают взгляд и создают уютную атмосферу — подойдут все оттенки бежевого, мягкий кофейный или песочный.


Проект гостиничного комплекса и фермы в Можайске
Еще одна важная тенденция загородной архитектуры и небольших отелей — переход к полноценным апартаментам. Такой формат создает обстановку, максимально приближенную к домашней. Конечно, нельзя обойти вниманием характеристики, которые подчеркнут эстетику места. Например, не стоит забывать про потенциал видовых локаций — к таким относятся крупные зеленые насаждения, панорамные окна и открытые площадки. Все эти критерии помогут создать комфортное пространство для жизни, отдыха и деловых встреч, причем независимо от локации объекта.
Дом и камерная гостиница в фермерском хозяйстве
Заказчик нашего недавнего проекта в Можайске хотел оптимально и нестандартно использовать территорию дачного участка площадью 2500 квадратных метров — построить ферму, амбар для хозяйственных нужд и гостиничный комплекс, где будут отдыхать друзья и родственники.
В проекте мы старались отразить разнообразные сценарии жизни и отдыха большой семьи. Функциональное внутреннее пространство здесь заключено в минималистичную архитектурную оболочку.
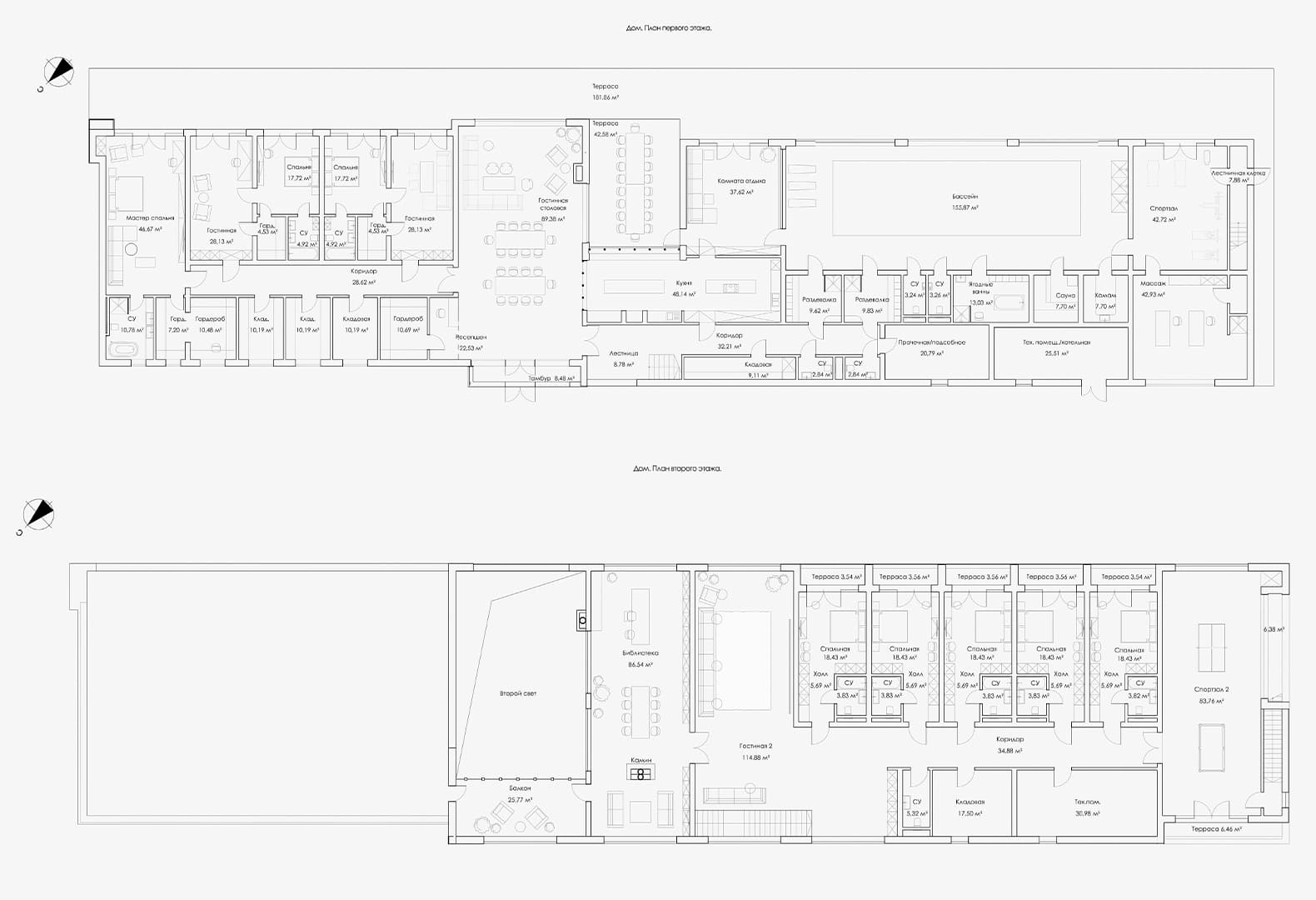
Макет комплекса; планы первого и второго этажей
Ферма в проекте появилась неслучайно: объект официально зарегистрировали как часть сельскохозяйственной деятельности, поэтому здесь будут выращивать овощи и фрукты. При этом от типичного деревенского огорода заказчик решил отказаться, сделав выбор в пользу вместительного ангара и жилого коттеджа, функционирующего также как гостиничный комплекс для друзей и близких.
Разрабатывая концепцию, мы вдохновлялись фермерскими хозяйствами Калифорнии, где к посадке и выращиванию овощей относятся легко и с большим энтузиазмом, нежели в России. Так, на территории в Можайске не встретить самодельных деревянных теплиц или непонятных кустов: яблони и рассада органично вписаны в пространство.

Спортивные площадки на территории комплекса
В комплексе можно отдыхать или проводить деловые встречи в непринужденной обстановке, а для поддержания формы — заниматься спортом и ухаживать за животными на ферме.
В качестве основного конструктивного элемента здания мы выбрали ЛСТК (легкие стальные тонкостенные конструкции). Их можно собрать за 2-3 месяца при любой погоде и, кроме того, они обладают высокой термоизоляцией, устойчивостью к землетрясениям и понятным монтажом по инструкции завода.

Фасад гостиничного комплекса
Вся жизнь территории сосредоточилась в гостиничном комплексе: здесь мы разместили много жилых комнат, санузлов и кладовых, а также бассейн и разноуровневые террасы. В амбаре, наоборот, сконцентрировались на технологических помещениях: аквариуме для рыб, холодильных камерах и теплице. На общей территории мы сконструировали спортивные площадки, административное здание и парковку, в том числе для фермерской техники. В дальнейшем на участке появятся баня в скандинавском стиле и современный глэмпинг — над ними мы сейчас активно работаем.
Все изображения предоставлены архитектурным бюро Skaträ.





