Авторские панно и плавная смена сезонов в интерьере московского ресторана — проект бюро УГОЛОК
Авторские панно и плавная смена сезонов в интерьере московского ресторана — проект бюро УГОЛОК
Команда бюро УГОЛОК создавала этот полный контрастов интерьер ресторана в Москве для бренда органической кухни Organic Club m2. Заказчик обратился к Кристине Лазаревой, Надежде Голубевой и Юлии Воеводиной с уже готовой концепцией, которую хотелось подчеркнуть в цветовой гамме. Современное и эффектное заведение должно было транслировать философию компании и визуально объединять пространство с остальными объектами. Фишкой оформления стала смена времен года, органично переходящих из одного помещения в другое.
Локация: Москва
Площадь: 695 м²
Авторы: бюро УГОЛОК, Кристина Лазарева, Надежда Голубева, Юлия Воеводина
Фото: Сергей Мельников
Связь между сезонами позволяет гостям выбирать настроение, в которое они хотят погрузиться в конкретный момент. При этом дизайнеры решили обойтись без прямых отсылок к атрибутам времен года — на них здесь тонко намекают только цепочки ассоциаций.
Надежда Голубевадизайнер бюро УГОЛОККристина Лазаревадизайнер бюро УГОЛОКЧтобы продолжить концепцию даже в названиях зон, мы организовали в ресторане и «Зимнюю» лестницу, и «Весеннюю» комнату для мастер-классов, а также «Летний зал» и «Осенний магазин». И не только их.
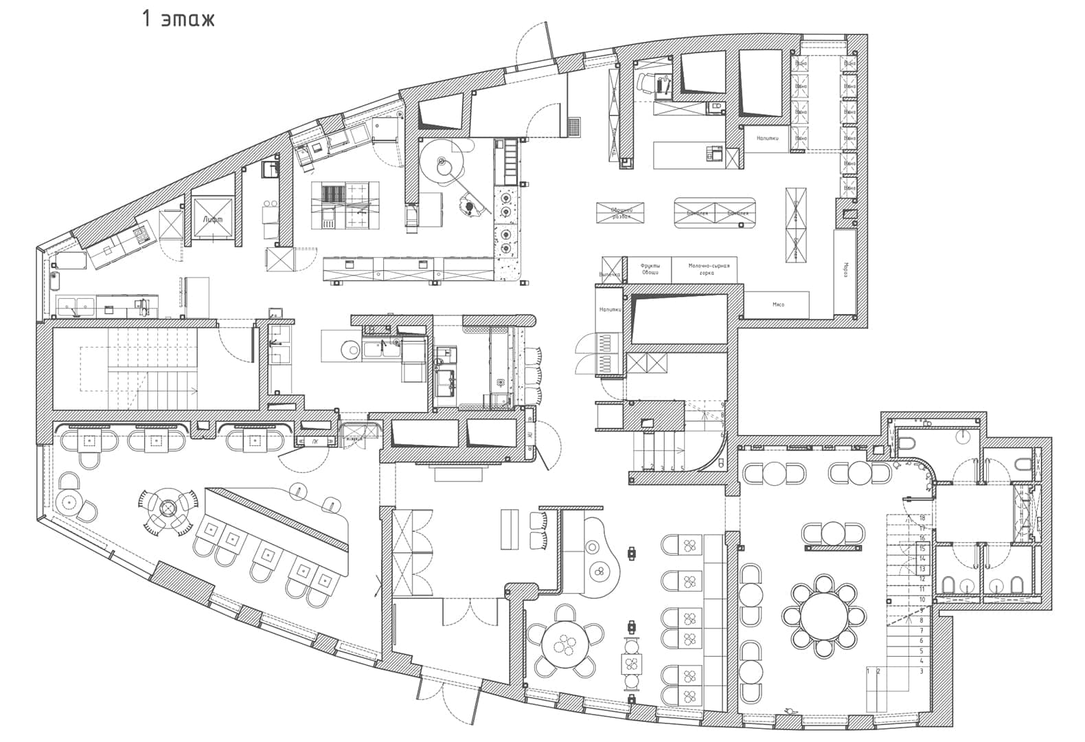
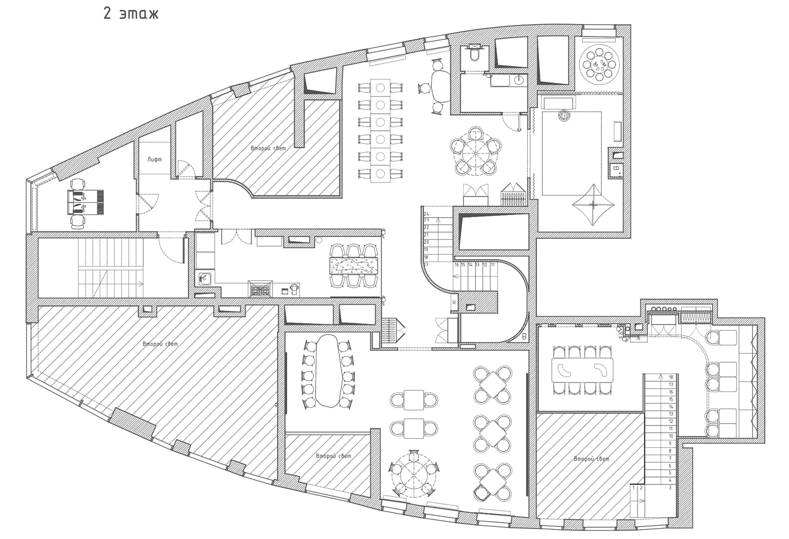
Планировка
Так как ресторан включает в себя несколько больших залов, для их обслуживания требовалось много дополнительных функциональных блоков. Так, на площади почти в семьсот квадратных метров разместилось около тридцати помещений. Вся планировка объекта создавалась с нуля. Изначально он представлял собой коммерческое пространство с панорамными окнами и семиметровыми потолками и несущими пилонами. Задачей дизайнеров было создание грамотного планировочного решения для магазина и зоны посадок.
План первого этажа с мебелью
Команда бюро УГОЛОК предложила возвести антресольный уровень — он помог более рационально использовать потенциал локации.
План второго этажа с мебелью
Далее два зонирования накладывались друг на друга: первое следовало разделению на времена года, второе — на блоки. Последнее подразумевало продуманное расположение технологических точек, кухни и торгового зала.
Интерьер и решения
Палитра и контекст
Залы решены в соответствии с конкретными сезонами, атмосферу которых хотелось передать в палитре оттенков и фактур. Выбор отделки для пола оказался необычным: первый этаж покрыт настоящим терраццо, а второй — инженерной доской из дуба. Изначально для нижнего уровня предусматривали наливной пол, но найти грамотного специалиста было практически невозможно. Однако команда хотела, чтобы покрытие не потрескалось и выглядело опрятным еще много лет.
Другими акцентами в проекте были гальванизированная сталь и медь. Почти вся мебель тут реализована по авторским эскизам, а отдельно стоящие позиции выбирали из ассортимента нескольких фабрик. Ткани тоже искали тщательно — требовались практичные и удобные в уходе текстуры.
Зимний зал
Лаконичный и выразительный интерьер зала в белых тонах обретает глубину за счет оригинальных световых сценариев и перепада высот потолка. Объединить два уровня этой зоны между собой призвана скульптурная лестница. На ней особенно хорошо заметна игра теней от авторских ламп и подвесов. Их палитра тоже не выбивается из общей цветовой гаммы — различаются только материалы.
Самым долгожданным из изделий оказалось бра «Луна». Почти все мастера были готовы выполнить только небольшую модель, но она не дала бы необходимый эффект. В процессе архитекторы нашли компанию, которая сделала форму и отправила ее художнику-скульптору на лепку и роспись. Работа шла долго, а прямо перед открытием изделие было доставлено разбитым. Тогда подрядчик пошел навстречу бюро и в кратчайшие сроки смастерил и прислал на объект вторую «Луну». Именно она сейчас украшает один из холлов ресторана.
Антресоль встречает гостей скульптурными изломами перегородок и элементом из полупрозрачной белой бумаги. Высокий глянцевый барный стол разместился в уголке этажа, а деревья и льняные шторы визуально смягчают ломаные углы.
Летний зал
Чтобы отразить в пространстве черты разных времен года, Кристина Лазарева, Надежда Голубева и Юлия Воеводина обратились к стилю «эклектика». Наполнить нейтральную отделку теплой атмосферой призваны активные детали, фактуры и цвета. Так, в «весеннем» зале появились травянисто-зеленые оттенки, заметные в стульях авторства компании U.S.PRO. Характерным приемом этого помещения стало текстильное зонирование: ощущение камерности тут создают летящие белые портьеры.
Особая роль в оформлении досталась барельефам, выполненным по авторским эскизам. При этом у каждого декоративного панно в интерьере своя история: круглый барельеф на входе выполнялся несколькими мастерами. Так, сначала скульптор изготовил основу, а затем художник расписал ее. Часть с животными, наоборот, создавалась в мастерской и дорабатывалась дизайнерами уже на объекте.
Осенний зал
На втором этаже заведения находится красно-оранжевая осенняя локация. Акцентный светильник из агавы здесь напоминает о бабьем лете, а лампы в виде бутонов задают умиротворяющее настроение. Сухоцветы и отсылки к форме грибов отсылают к образу леса.
Для гостей, приходящих отдохнуть с детьми, в ресторане предусмотрена камерная игровая комната, наполнение которой продолжает осеннюю тематику. Пол из дубовой доски и кирпичная оранжевая стена сочетаются со сдержанными тонами березовой фанеры.
Комната для мастер-классов
Блок для проведения лекций и мастер-классов под руководством шеф-повара ресторана решен в голубых оттенках. Фоном для авторских решений тут выступил акцентный бело-голубой пол из терраццо — он раскрывает тему начала холодной весны. Белая кухня с металлическими фасадами напоминает сугроб в тени, а под светильниками-сосульками расположился стол из эпоксидной смолы с сухоцветами.
Санузлы
В зоне уборных на первом этаже царит атмосфера поздней осени, поэтому команда украсила стены рисунками в виде сухих полевых трав. Светлый камень напольных раковин смотрится ярче на фоне пола из темного керамогранита.