
Объемная стена и культовая мебель в монохромном интерьере квартиры — проект студии «Точка дизайна»
Владелец этой двухуровневой квартиры в московском ЖК Wine House оказался «идеальным заказчиком»: он обратился к Варваре Чесноковой из студии «Точка дизайна» за нестандартным интерьером. За плечами дизайнера был большой опыт работы с современными пространствами, поэтому общий язык с клиентом она нашла сразу. Оформление хотелось сделать сдержанным, но при этом тонко отражающим вкусы хозяина — его тяга к брутальности нашла отражение в обилии крупных форм и ломаных линий, а интерес к искусству стал определяющим при выборе декора.
- Локация: Москва
- Площадь: 130 м²
- Автор: студия «Точка дизайна», Степан Бугаев, Варвара Чеснокова, Марк Яворский
- Фото: Варвара Чеснокова
- Стиль: Марк Яворский
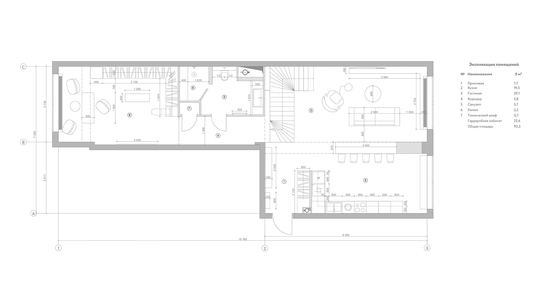
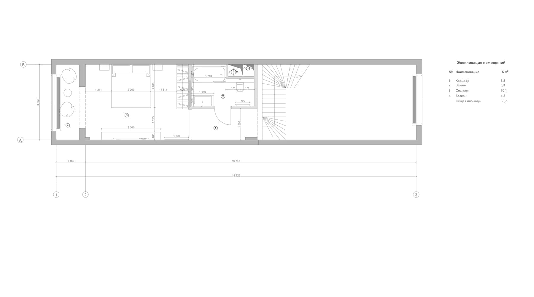
Двухуровневая квартира со вторым светом и панорамными окнами отличалась высокими потолками и видом на город. Объект сдавался с готовой планировкой от застройщика, которую решили не менять. Чтобы раскрыть потенциал пространства, команда предложила оставить его открытым и отказалась от новых перегородок. Даже межкомнатные двери сделали сдвижными — такой прием позволил не разделять помещения без необходимости. На первом этаже расположились прихожая, кабинет и объединенная кухня-гостиная. Акцентом здесь стала рубленая стена, имитирующая настоящую скалу. Ее реализация потребовала совместных усилий студии и подрядчика, который осмелился взяться за такой сложный проект. С этого этапа началось воплощение желаний клиента: ему хотелось добиться ощущения «квартиры без мебели», поэтому в стену интегрировали ТВ-тумбу. Композицию завершили журнальный столик Bonaldo и культовое кресло B&B Italia, которое сразу приглянулось хозяину дома. Финальными штрихами этой зоны выступили голубой торшер Flos и ковер Dovlet House. Кухонный гарнитур выбрали минималистичный: среди однотонных секций выделяются фартук из крупноформатного керамогранита и светлые розетки. Заказчик часто принимает гостей, поэтому дизайнер дополнила столовую группу контрастными стульями Bonaldo. На верхний уровень ведет лестница, тоже отражающая любовь клиента к монохрому. Искусство играет не последнюю роль в его жизни, поэтому Варвара обратилась к ярким абстрактным арт-объектам. Изголовье кровати в мастер-спальне было заменено огромным полотном художника — оно задает характер в комнате. Оформление подчеркнули красочные детали: синяя настольная лампа, подушки с пайетками и сшитое на заказ покрывало из термоткани.



















