
Красочный интерьер таунхауса для семьи дизайнера — проект студии Deconova
Интерьер этого таунхауса в Гродно Юлия Страпко создавала для себя и своей семьи. Супруги успели сменить много квартир в разных городах, однако именно этот дом стал первым, в котором дизайнер смогла полностью отразить свой внутренний мир на данном этапе жизни. Интерьер пространства решили визуально связать с небольшим участком, окружающим коттедж.
- Локация: Гродно
- Площадь: 120 м²
- Авторы: Студия архитектурного дизайна Deconova
- Фото: Сергей Пилипович
- Стиль: Катерина Стояк
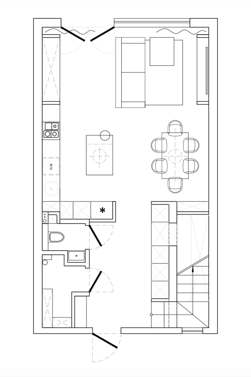
Знакомство с интерьером начинается со светлой прихожей, пол в которой уложен натуральным мрамором. Далее напольное покрытие сменяется паркетной доской с укладкой «елочкой» — единство материалов обеспечивает целостность оформления. Здесь же находятся гостевой санузел и технический узел с котельной и шкафами. Одна из створок ведет в небольшую гардеробную для сезонной одежды и обуви под лестницей. Эффектное зеркало Seletti, подаренное хозяйке на день рождения, играет роль яркой визуальной точки. Кухня-гостиная стала настоящим сердцем дома, так как здесь супруги проводят большую часть времени. Акцентом в ней выступает выполненный на заказ черно-белый диван — его окружают полученное в наследство от бабушки винтажное кресло, журнальный столик из дерева и яркий терракотовый ковер. ТВ-зона встроена в систему хранения, а симметричная ей мебельная конструкция для книг и декора установлена напротив. Кухонный гарнитур без верхних секций создает ощущение простора и воздуха за счет покрытого серой плиткой фартука в потолок. Украшением места для готовки служит остров с фасадами из темно-серого камня. Для детей дизайнера предусмотрены собственные комнаты, спроектированные с учетом пожеланий маленьких владельцев. Дочь хотела видеть растения и свой любимый оттенок фиолетового, а сын — голубой цвет и декоративных рыбок. Ванная, наоборот, получилась универсальной: ее дополнила плитка Fossil с причудливым графичным рисунком. Изюминкой мастер-спальни оказалась кровать с деревянными ножками в форме шаров: ее заказали сразу после покупки коттеджа.
















