
Функциональное зонирование и «осенний» декор в интерьере небольшой квартиры — проект Нины Абасеевой
Владелица этой квартиры приобрела ее для последующей сдачи в аренду и обратилась к дизайнеру Нине Абасеевой с просьбой создать нейтральный интерьер. Референсами для концепции оформления стали лаконичные проекты без ярких деталей, за счет отсутствия которых жильцы смогут сами задавать нужное настроение в доме. Основной задачей дизайнера было соблюдение бюджетных ограничений, обозначенных еще до начала стройки.
- Локация: Москва
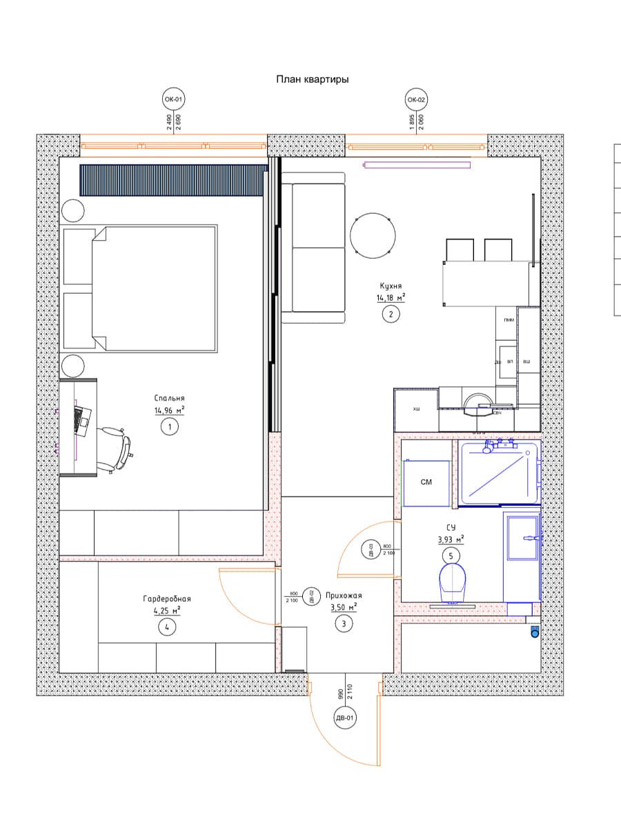
- Площадь: 41 м²
- Автор: Нина Абасеева
- Фото: Александр Гаврилов
Одним из пожеланий заказчицы к проекту было создание необычного решения, которое будет отличать квартиру от остальных предложений на рынке съемного жилья. Нина Абасеева предложила заменить внутренние стены между комнатами раздвижной перегородкой в графичной раме. С ее помощью приватную половину при желании можно отделить от кухни-гостиной. Когда она открыта, небольшое пространство визуально увеличивается и кажется цельным. Добиться такого эффекта дизайнеру помогла сплошная покраска стен белой краской с матовым финишем. По задумке команды, ничто не должно отвлекать внимание от основных мебельных групп и текстиля в обволакивающих серых тонах. За счет углового расположения кухонного гарнитура зона для готовки получилась компактной — рядом с ней даже нашлось место для барного стола с полубарными стульями из массива и подвесного телевизора. Монохромную гамму разнообразил фактурный керамогранит под терраццо на фартуке. Точкой притяжения гостей квартиры выступает композиция из округлого бежевого дивана и черного журнального столика. Разбавить сдержанную палитру оформления призваны декор и искусство с вкраплениями оранжевого цвета. За хранение в проекте отвечают встроенные шкафы и вместительная гардеробная. Световые сценарии остаются удобными в любое время суток благодаря бра, у которых можно менять угол освещения. Их геометрию поддерживают два панно: одно было создано молодым художником Егором Щеповалиным, а над другим трудилась Оксана Холтобина.















