
Арочные проемы и текстильные перегородки в интерьере небольшой квартиры — проект Лины Князевой
Работа над этим интерьером стала для Лины Князевой очень личным процессом: дизайнер создавала его для своей мамы. Хозяйке дома хотелось получить светлое и уютное оформление с удобной кухней и фактурным деревянным полом. Все зоны небольшой квартиры должны были представлять собой расслабленное пространство для отдыха после насыщенных будней.
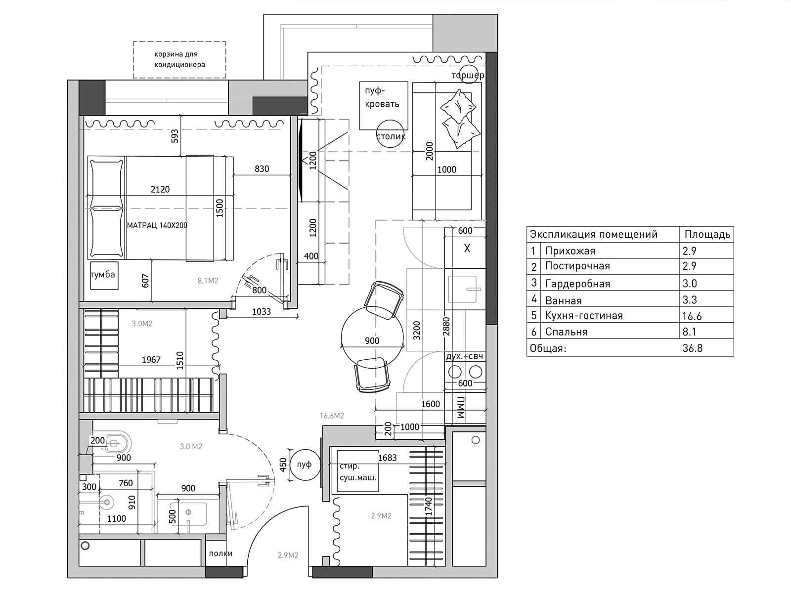
- Локация: Москва
- Площадь: 37 м²
- Автор: Лина Князева
- Фото: Лиза Гуровская
- Стиль: Ирина Темнова
Лина Князева подошла к проектированию ответственно: чтобы компактное пространство получилось душевным и отражало характер хозяйки, оно задействовано максимально рационально. Здесь разместились сразу две гардеробные, санузел, отдельная спальня и комфортная кухня-гостиная. Необычным решением оказалась замена части межкомнатных дверей плотными шторами — такие же портьеры маскируют вертикальные радиаторы. От активного следования трендам дизайнер уверенно отказалась — в первую очередь ей хотелось создать умиротворяющий фон для повседневной жизни. Одними из главных выразительных инструментов выступили зеркала, призванные визуально стереть границы комнат и впустить в интерьер ощущение воздуха. В проекте сочетаются сразу несколько способов организации хранения: закрытые системы сменяются открытыми стеллажами для декора — любимых мамой ваз и красивой посуды. Они стали настоящим украшением общественного блока, где полка продолжает верхние секции кухонного гарнитура. Как и остальная корпусная мебель, шкафы выполнены с эффектом под дерево. Теплый оттенок фасадов подчеркивает глубину зеленого цвета в обивке дивана и яркие терракотовые шторы. Гордостью команды стали бра ручной работы Bongo Ceramics в спальне, светильник из травертина в прихожей и подсветка в зоне арки.

















