
Практичный интерьер небольшой квартиры с собственным палисадником — проект дизайн-студии ANCconcept
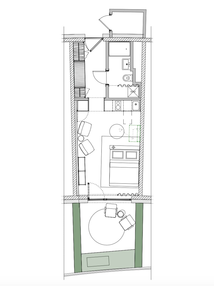
Эта квартира с небольшим палисадником расположена в чешском городе Брно. Она сдавалась уже с отделкой, но без мебели — дизайнерам ANCconcept предстояло превратить прихожую, ванную и одну комнату в студию, подходящую для проживания пары. Заказчики останавливаются здесь во время коротких рабочих поездок, поэтому команде требовалось продумать условия для качественного отдыха.
- Локация: Брно
- Площадь: 30 м²
- Авторы: ANCconcept, Пётр Лукьянов, Кирилл Устинов
- Фото: ANCconcept
Команде предстояло наполнить пространство с готовой отделкой мебелью и декором. Создание интерьера оказалось непростым из-за вытянутой геометрии помещения. Роль центрального элемента здесь досталась кровати с подиумом. Конструкция учитывает необычное пожелание заказчицы: чтобы никто не мог сесть на заправленную постель, по периметру расположен подиум с хранением. Эта же плоскость становится столиком в составе мягкой группы напротив, а во время завтрака выполняет функцию обеденного стола. Объем также разграничивает зону кухни и спальни, а еще выступает торшером за счет встроенного освещения. Компактное место для готовки разместилось возле прохода из прихожей. В гарнитур интегрированы полноразмерный холодильник, посудомойка, духовка с пароваркой и шкафы разной глубины. Оно вмещает всю бытовую утварь, не перегружая пространство. У входной двери Пётр Лукьянов и Кирилл Устинов предусмотрели еще два шкафа для одежды и выдвижные ящики с главным декоративным элементом: круглой красной нишей. В том числе благодаря этой яркой детали проект наполнен «европейским» настроением: в нем чувствуется расслабленная атмосфера и совсем нет ощущения безжизненной квартиры для командировок. Чтобы избежать строительных работ, встроенные потолочные светильники решили заменить лампами в форме шаров разного диаметра. Над желтым креслом установлен двойной светильник DCW, который адаптируется под положение стола, а у комода можно заметить бра USM.














