
Динамичный интерьер «офиса будущего» в центре Москвы — проект VOX Architects
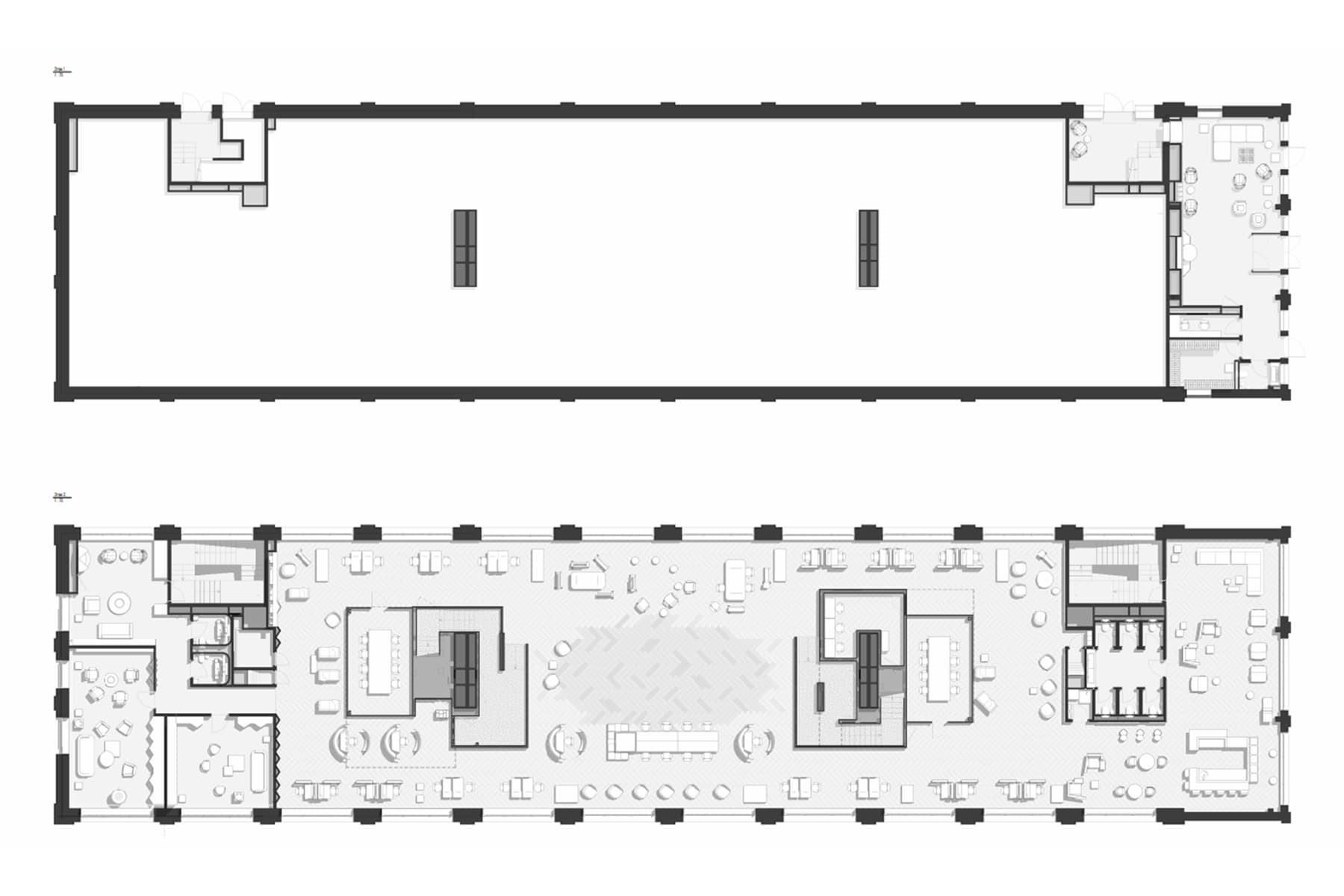
Команда бюро VOX Architects воплотила свое видение интерьеров будущего в деловом хабе «Киберэтаж». Пространство задумывалось как микс закрытого клуба единомышленников и гибкой локации для работы в центре Москвы. Основным принципом проекта стала приватность, которая сохраняется за счет ограничения в двести годовых резидентов.
- Локация: Москва
- Площадь: 1200 м²
- Авторы: VOX Architects
- Фото: Дмитрий Чебаненко
Пространство занимает половину первого и весь второй этаж здания. На входе гостей встречает виртуальная помощница, которая приветствует их с экрана, встроенного в круглый портал в стене. Единую атмосферу в разных зонах поддерживает обволакивающая цветовая гамма с природными отделочными материалами — панелями с текстурой дерева, натуральными тканями мягкой мебели и войлочными элементами в форме облаков. В зал открытой планировки ведет созданная на заказ лестница яркого лаймового оттенка. Верхний уровень офиса представляет собой поле, где сотрудники не привязаны к фиксированным рабочим местам. Разнообразие сценариев посадки обеспечивает линейка авторской мебели. Сложные конструкции с инсталлированными кабель-каналами позволяют быстро менять съемную столешницу на флипчарт или дисплей. Более камерной зоной, располагающей к сосредоточению, стало уединенное пространство с диванами, акустическими перегородками и мобильными кабинетами. Для командной работы архитекторы предусмотрели столы, которые можно перемещать и соединять друг с другом. За хранение в проекте отвечают передвижной авангардный комод для канцелярии и ироничный деревянный робот. По схожему с хранением принципу организованы большие двухэтажные «Печи» — объемы воздуховодов, расположенные на первом уровне. В них интегрированы офисные сервисы: бэк-офис, техника и шкафы для документов, позволяя избежать визуального шума.






















