
Обволакивающий интерьер флагмана бренда нижнего белья — проект бюро RMMSH
Команда бюро RMMSH представила уже десятый проект, созданный для бренда Lavarice. Пространство находится на территории бывшего лакокрасочного завода братьев Мамонтовых 1903 года постройки — в исторической части ЖК LUCKY. Для Романа Гуляева и Марии Цахариас было важно работать с контекстом: существующим характером помещения, ощущением воздуха и архитектурной логикой. В них предстояло вписать устойчивый ДНК-код заказчиков, построенный на ощущении теплого света, пластичности, мягких линий и глубины.
- Локация: Москва
- Площадь: 166 м²
- Авторы: архитектурное бюро RMMSH, Роман Гуляев и Мария Цахариас
- Фото: Даниил Анненков
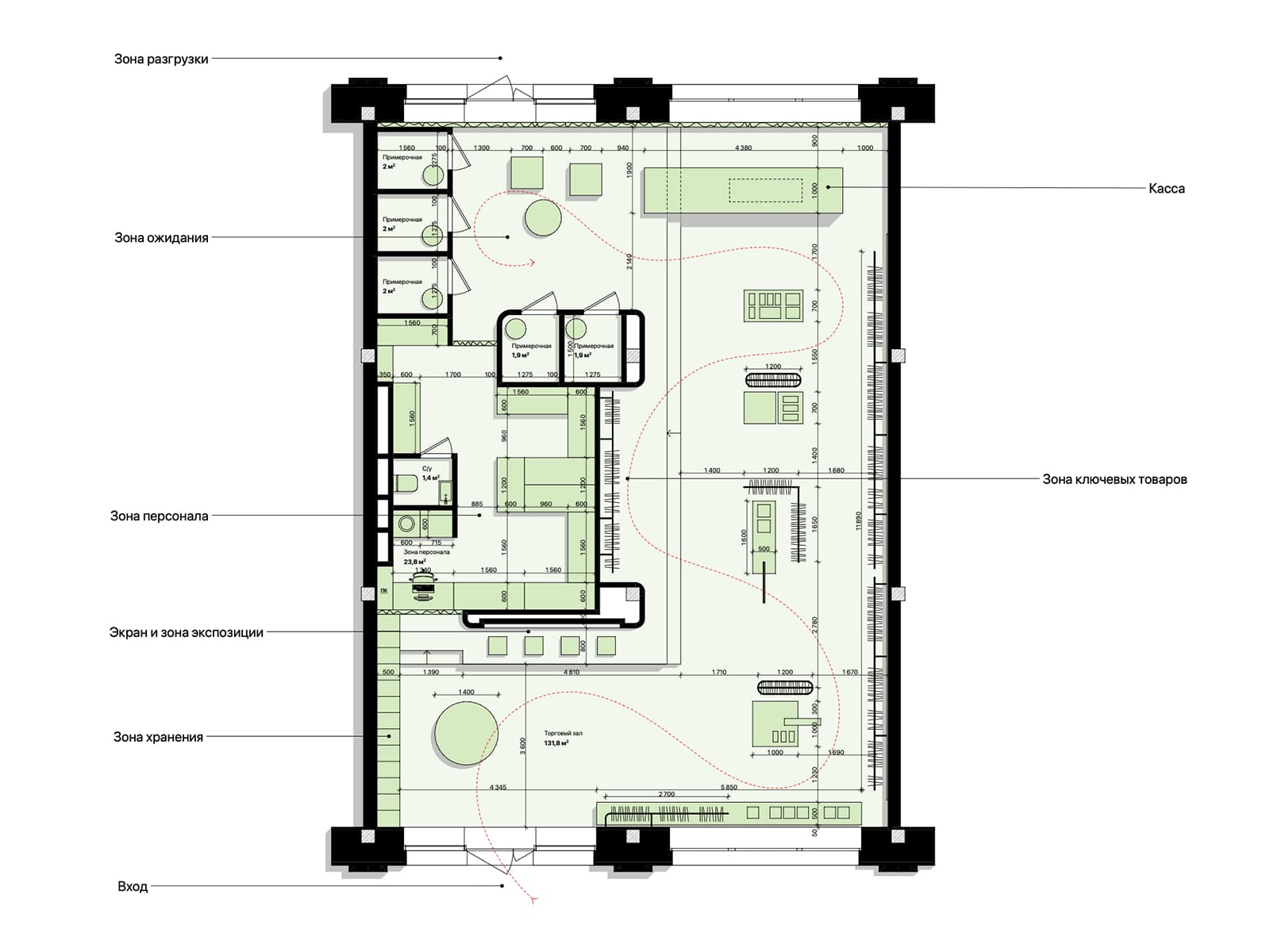
Основным пожеланием заказчиков к проекту было логическое развитие сформировавшейся за годы концепции. Ее узнаваемость хотелось сохранить, но при этом сделать оформление более смелым. Эта задумка нашла отражение в акцентных элементах, подчеркивающих атмосферу бренда через материалы. Дизайнеры стремились отказаться от типовых решений в пользу эмоциональности и архитектурной выразительности. Еще одним героем магазина должен был стать свет, одновременно работающий на человека и продукт. Планировка опирается на историческую архитектуру объекта 1903 года: пространство не перегружено и остается «воздушным». Команда студии постаралась придать привычному ритейл-оборудованию новые формы, чтобы интерьер воспринимался как цельная среда. Светлая монохромная отделка шоурума отражает образ «пещеры», построенной на пластике и скругленных линиях. Один цвет здесь раскрывается через игру непохожих друг на друга текстур. На их фоне выделяются фокусные точки: например, круглый экран диаметром три метра. Крупная деталь, заметная с улицы, притягивает взгляд. В зоне ожидания расположились кресла EBURET в фирменном оттенке бренда Lavarice. Ощущения тепла сюда привносят ковры ручной работы Art de Vivre — три разных по фактуре изделия создают тактильную глубину и мягко нарушают геометрию пространства.
















