
Наполненный цветом и теплыми фактурами интерьер квартиры с кабинетом на лоджии — проект Полины Коптевой
Заказчица Полины Коптевой — молодая женщина-руководитель, которая много времени проводит в командировках и периодически работает удаленно. Она обратилась к дизайнеру с запросом на создание уютного интерьера под ключ, в котором яркая палитра будет сочетаться с природными материалами. Проект стартовал в 2022 году, поэтому все члены команды трудились особенно сплоченно: представленные на рынке предметы и бренды постоянно менялись. Хозяйка квартиры активно участвовала в выборе функциональных решений, а в остальном доверилась профессиональному видению.
- Локация: Санкт-Петербург
- Площадь: 95 м²
- Автор: Полина Коптева
- Фото: Дмитрий Модестов
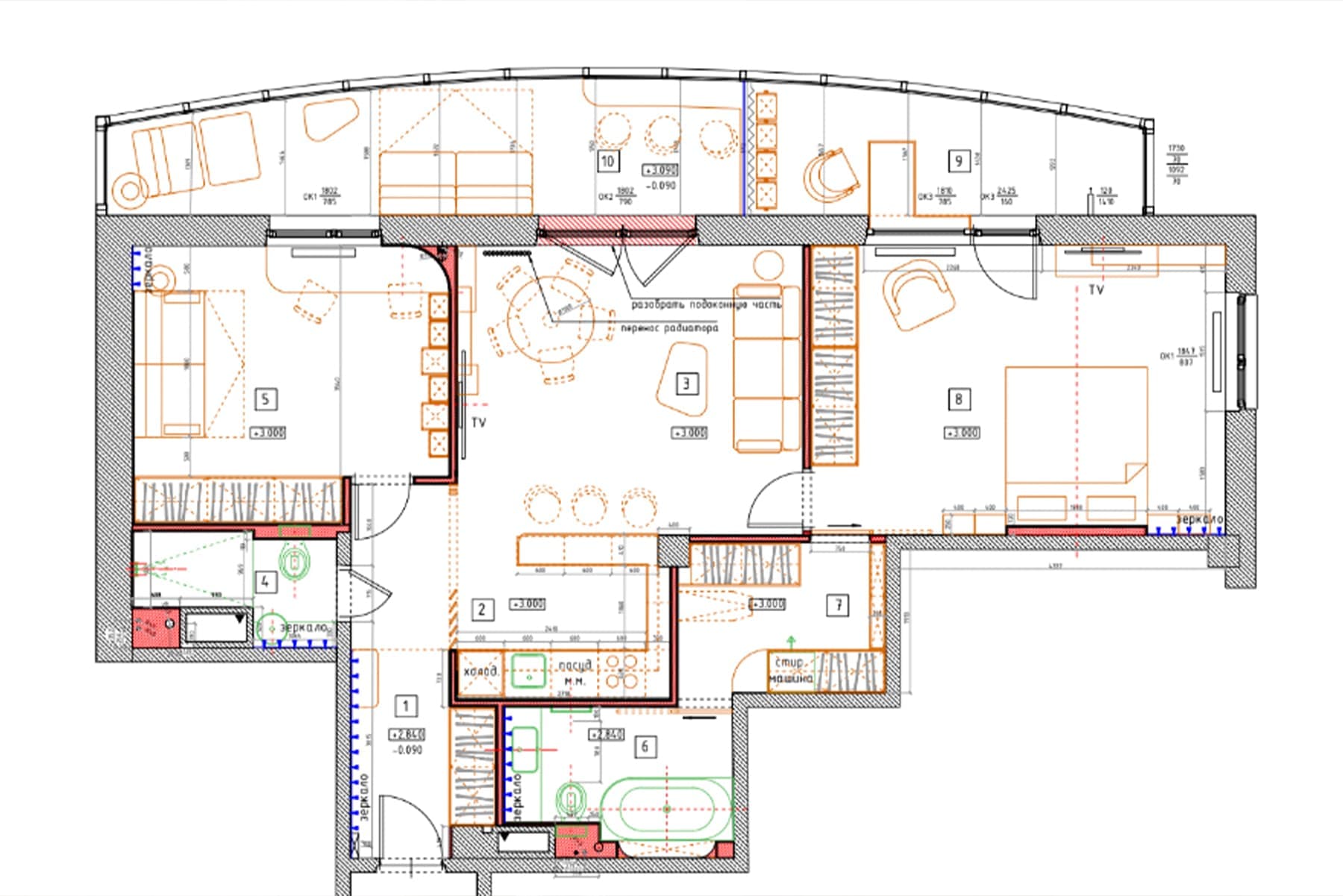
Исходная планировка квартиры включала в себя две изолированные комнаты и кухню. Дизайнеры перенесли место для готовки в коридор и объединили его с гостиной, а на освободившемся метраже выделили еще одно полноценное помещение. Вытянутую остекленную лоджию утеплили и разделили прозрачной перегородкой. Теперь одну ее половину занимает кабинет, а другая примыкает к общественному блоку. Объединенная кухня-гостиная вместила в себя компактный гарнитур в приглушенном зеленом оттенке. Благодаря барной стойке Полина Коптева обыграла несущую колонну и отделила хранение кухонной утвари и бытовую технику от зоны отдыха. Этой конструкции требовалось хорошее освещение, поэтому над ней установили светильник-трубку Glode. В другой части гостиной находятся низкий диван и обеденная группа со стульями из гнутой фанеры, найденными на Авито. Дополнить оформление призвано гипсовое панно с колосьями работы Оксаны Степановой — вместе с графичным бра оно создает уютную атмосферу. Другой фишкой проекта оказался скругленный угол в детской. Он появился неслучайно: здесь зашиты вертикальные коммуникации, идущие с крыши. Завершить интерьер помогли зеркала без рам от пола до потолка, наклеенные в спальне и прихожей.


















