
Авторские панно и природные цвета в интерьере загородного дома — проект Анастасии Давиденко
Заказчиками Анастасии Давиденко стала активная молодая семья, которая часто принимает гостей. Они попросили ее создать вместительное пространство кухни-гостиной, в котором можно собираться большой компанией. Дизайнеру предстояло объединить в проекте преимущества загородной жизни с технологичными решениями — например, встроенной акустической системой и навигационным освещением.
- Локация: Московская область
- Площадь: 100 м²
- Автор: Анастасия Давиденко
- Фото: Анаит Махмурян
- Стиль: Василина Коновалова
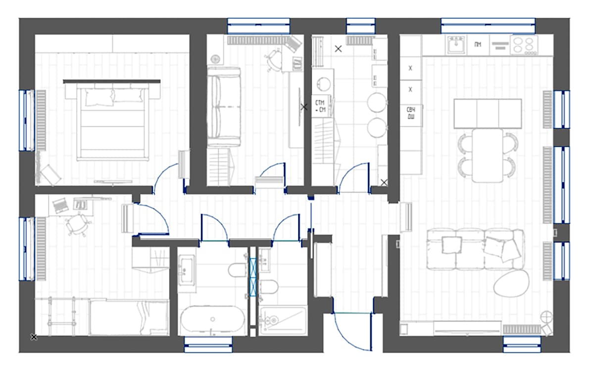
Исходная планировка дома оказалась достаточно удачной, поэтому глобальные изменения внесли только в конструктив мастер-спальни, выделив за изголовьем кровати проходную гардеробную без дверей. Приватный блок практически незаметно отделен от кухни-гостиной перегородкой с дверью-пеналом. В работе с объемно-пространственным решением и светом Анастасия Давиденко отдавала приоритет функциональности. В каждом помещении она предусмотрела несколько сценариев освещения, а также интегрировала в отделку персональную акустическую систему. В качестве напольного покрытия здесь использован кварцпаркет. Его оттенок перекликается с фасадами кухонного острова и гарнитура, изготовленных по авторским эскизам компанией MEBELIER. Хранение бытовой техники команда вынесла во встроенные пеналы белого цвета: они почти сливаются со светлым оттенком стен. Теплая текстура дерева продолжается в зоне отдыха с зеленым диваном и выполненной на заказ картиной в природной цветовой гамме. Двускатная крыша коттеджа впустила в комнаты второго этажа ощущение воздуха — оно особенно заметно в мастер-спальне. Панно за изголовьем кровати вручную расписали художники студии Marengo Art: даже спустя полгода жизни в этом доме заказчики продолжают восхищаться реализацией задумки.














