
Светлый интерьер небольшой квартиры для студента-хоккеиста — проект Аллы Кроль
Этот интерьер создавался для студента, который профессионально занимается хоккеем. Он обратился к Алле Кроль с запросом на современный стиль джапанди и планировку, которая будет учитывать потребности и образ жизни спортсмена. При этом в оформлении не ощущается излишняя брутальность: светлые тона и деревянная мебель подходят для любых сценариев жизни.
- Локация: Москва
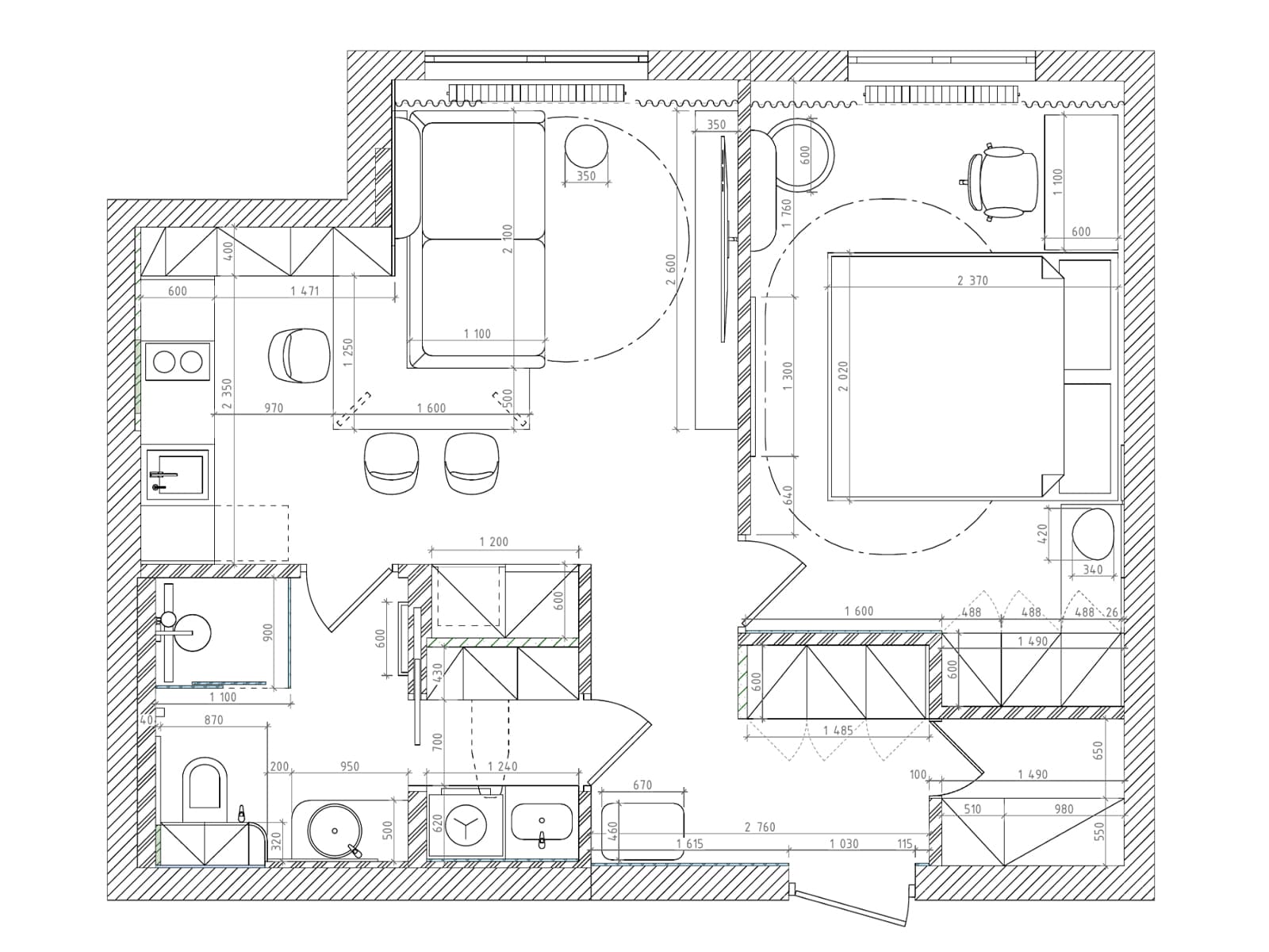
- Площадь: 47 м²
- Автор: Алла Кроль
- Фото: Михаил Чекалов
- Стиль: Варвара Калицкая
Перепланировка позволила максимально раскрыть потенциал небольшой квартиры, в которой хотелось выделить вместительное хранение и комфортную спальню со столом для учебы. Несмотря на функциональную насыщенность интерьера, дизайнер постаралась сохранить ощущение воздуха. Ключевой задачей была организация обслуживания формы и спортивного инвентаря хоккеиста: специально для этих целей рядом с прихожей установили ведущий в ванную хозблок. В квартире организованы шкафы, изготовленные по авторским эскизам. Самым эффектным пространством дома стала гостиная, где компактный обеденный стол разграничивает диван и лаконичную кухню без верхних секций. Практичность зоны для приготовления блюд обеспечивает блок с пеналами — он вместил почти всю бытовую технику. Над рабочей поверхностью Алла Кроль предусмотрела декоративную нишу со скрытой подсветкой. Ее поддерживают два черных бра и контрастные подвесы. Расслабленное настроение кухни-гостиной продолжает приватная комната с фактурной стеной за изголовьем кровати и объемным белым панно. Последнее выполнено на заказ для этого проекта.













