
Интерьер большой квартиры для творческой девушки — проект ART-UGOL
Эту просторную квартиру в Москве дизайнеры студии ART-UGOL разрабатывали для своих давних заказчиков — супругов, которые попросили создать свежий интерьер для их дочери. Изначально они пришли с просьбой изучить планировку от застройщика. Предложения по ее улучшению внесли еще до отделки, но некоторые ограничивающие факторы обойти не удалось. Коммуникация со строителями тоже оставалась на стороне девелопера, поэтому Илья Котельников, Максим Павленко и Дарья Марченко постарались избежать сложных узлов.
- Локация: Москва
- Площадь: 170 м²
- Автор: студия архитектуры и дизайна ART-UGOL, Илья Котельников, Максим Павленко, Дарья Марченко
- Фото: Сергей Красюк
- Стиль: Yes We May
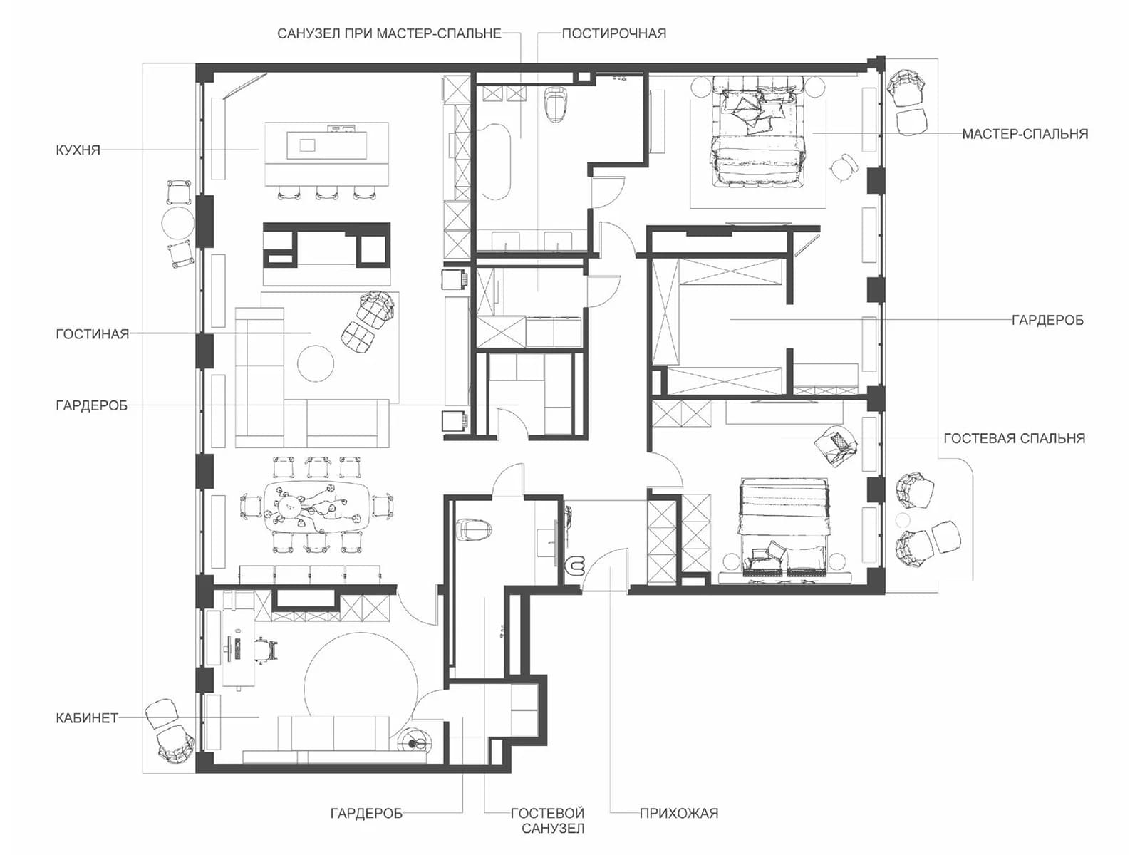
В проекте от застройщика были предусмотрены сразу четыре санузла — и ни одной гардеробной. Такое распределение функциональных зон было проблематичным, поэтому дизайнеры превратили две ванные комнаты в зоны хранения одежды и бытовых мелочей. В результате им удалось выделить полноценный мастер-блок, отдельную гостевую спальню, кабинет, общественное пространство и постирочную. Характер интерьера должен был отвечать запросам девушки-хозяйки, которая мечтала о красочном и творческом оформлении. Эту атмосферу команда студии постаралась воплотить в жизнь, не нарушая общей гармонии проекта. Так, уже во входной группе гостей встречают необычные предметы: цветной пуф Baxter и нарочито изогнутое зеркало Fiam успели купить в последний момент, так как модель уже сняли с производства. Доминантой столовой стал подвесной светильник Bocci с семнадцатью подвесами. Форма круга продолжается в гостиной с большим арт-объектом французского художника Christophe Gaignon на стене с камином. В каждой комнате акцентные детали выделяются среди серо-бежевой палитры отделки и обивок мягкой мебели. Активные аквамариновые и терракотовые оттенки создают в квартире молодежное настроение.





















