
Респектабельный интерьер двухэтажного пентхауса в столице — проект ANRE ARCHITECTS
Ключевой задачей, которую хозяин этого дома поставил перед командой студии ANRE ARCHITECTS, было создание статусного интерьера с выраженным мужским характером. Владелец — молодой бизнесмен, поэтому почти все решения он делегировал дизайнерам. Им предстояло точно уловить его пожелания и реализовать их на объекте, минимально вовлекая заказчика во все процессы. Вдохновение Анастасия Резникова черпала в узнаваемых пентхаусах Манхэттена 60-х годов. Их сдержанность и умеренность решили повторить в современном оформлении.
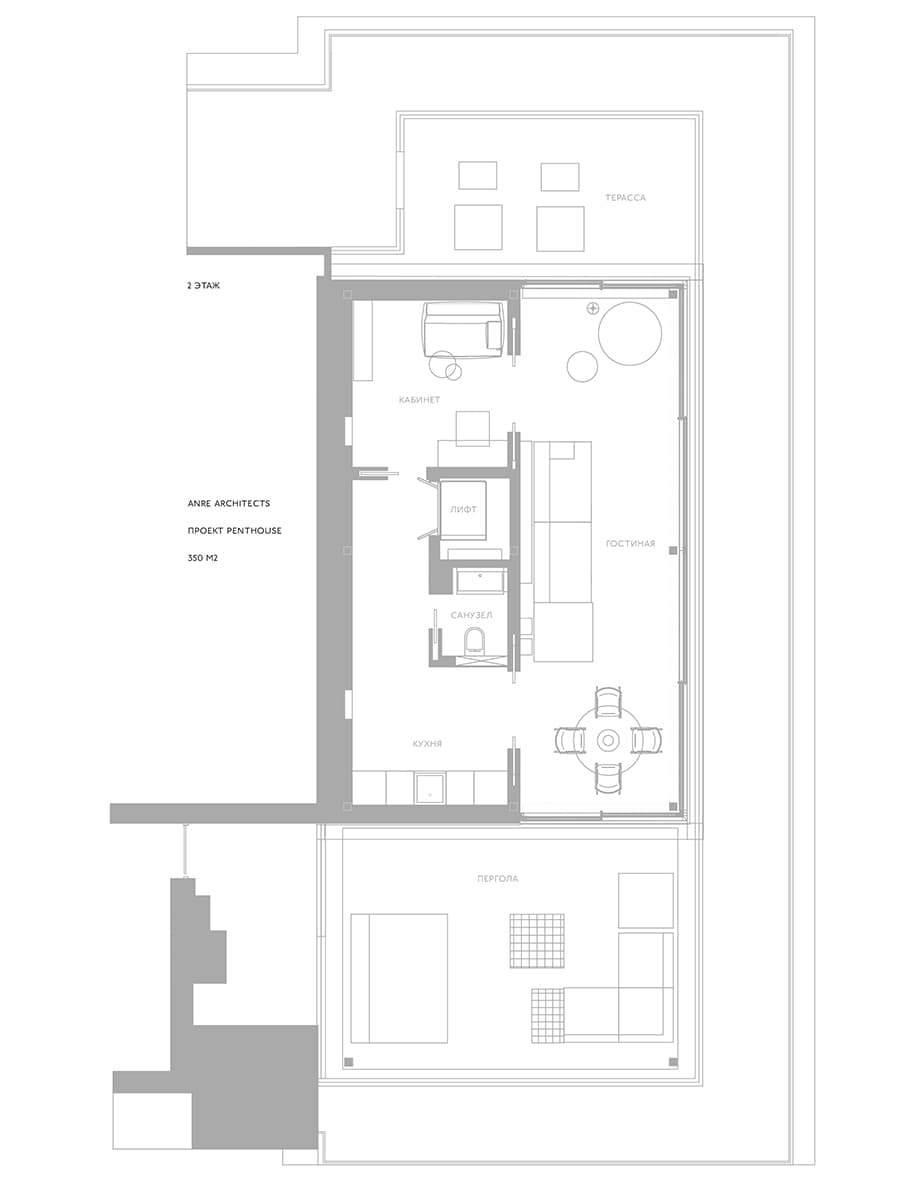
- Локация: Москва
- Площадь: 350 м²
- Авторы: ANRE ARCHITECTS
- Фото: Дмитрий Чебаненко
Перепланировка коснулась только кухни-гостиной, которые были объединены в единое пространство. Потолки высотой более четырех метров требовали кропотливой работы над сомасштабностью разных зон. Теперь прямо от входной группы хозяевам квартиры открывается вид на кухню-столовую с полупрозрачной люстрой из металла. Место для готовки дизайнеры перенесли в глубину помещения — так его почти не видно из гостиной. Список пожеланий заказчика возглавляла возможность размещения друзей, поэтому здесь постарались сохранить максимальное количество спален. Первый и второй этажи команда студии ANRE ARCHITECTS соединила необычным подъемником: по шахте из черного стекла поднимается только платформа лифта. Верхний уровень получился оригинальным: здесь есть дополнительная гостевая кухня и спальня хозяина с кабинетом. Половина помещений окружена панорамными окнами, которые переходят в остекление террасы. Грамотная организация метража позволила клиенту ощущать себя уединенно даже во время приема гостей. Ориентиром в определении характера интерьера стало ощущение цельности, свойственное классическим американским домам. Его хотелось передать с помощью современных материалов и технологичных решений — так, в проекте появились слэбы из массива гранита на оконных откосах. Они кажутся незаметными, но на самом деле подчеркивают стилистику оформления и его лаконичную палитру. Полностью раскрыть потенциал объекта дизайнерам помогли металлические стеновые панели и высокие дверные порталы. Их монтаж потребовал больших усилий, так как все элементы приходилось поднимать на крышу здания. Культовое кресло B&B Italia, комоды De Castelli, камин из латуни и стальные цепочки добавили сюда уюта.























