
Нескучный интерьер двухуровневой квартиры с «мужским» характером — проект Kononov Studio
Заказчик белорусской Kononov Studio — занятый в сфере IT молодой человек — обратился к команде с запросом на брутальное и лаконичное оформление. Его квартира находится на верхнем этаже ЖК «Минск Мир» и предназначена для проживания одного человека или пары. Основной задачей дизайнеров был поиск грамотного баланса эстетики и практичности, позволяющего создать удобный для работы и отдыха интерьер.
- Локация: Минск
- Площадь: 123,5 м²
- Авторы: Kononov Studio
- Фото: Андрей Кот
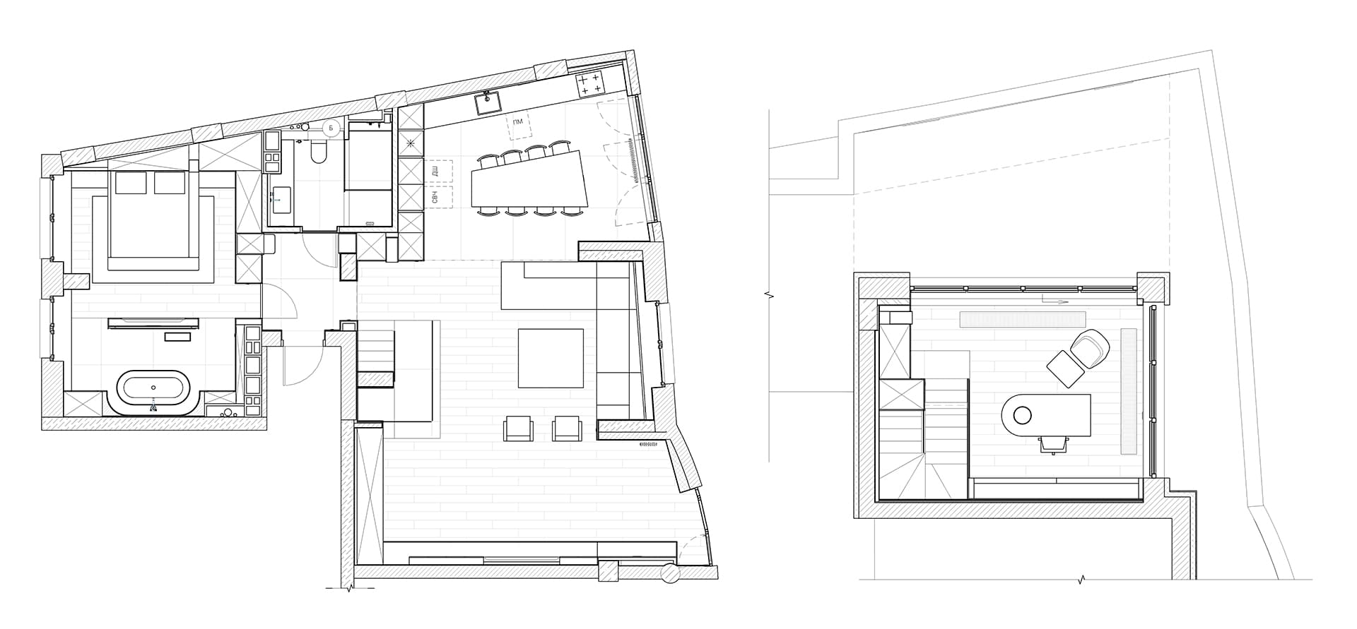
Объект был довольно удачным: двухуровневая квартира с высокими потолками и световыми проемами давала дизайнерам поле для фантазии. Заказчик хотел получить просторный, наполненный светом интерьер для одного или двух жильцов. Команда сформировала все необходимые для комфортного проживания зоны, среди которых большая кухня-гостиная, мастер-спальня с собственным санузлом, прихожая, душевая и кабинет с выходом на террасу. Единственным недостатком пространства была изогнутая форма дома, из-за которой стены располагались не параллельно друг другу. Цветовая гамма проекта способствует созданию мужественной и аскетичной атмосферы без визуального шума. Команда использовала теплые приглушенные оттенки, паркетную доску и керамогранит. Особой гордостью студии стал остров со столешницей из цельной плиты кварцевого агломерата, а также большой диван и кресло Pedrali в гостиной. На первом этаже появилось деление на ярусы с помощью отделки: темно-серый оттенок нижней части стен сменяется белым в верхней. Лестница здесь выступает центральным скульптурным элементом. Монументальные ступени из керамогранита подчеркивают динамичную композицию, а графитовое остекление добавляет брутальности. В кабинете тоже не найти лишней мебели — тут находятся только диван Mexo, стул Woodlight + KONONOV architects, кофейный столик Aldo, а также декор и стол Zuiver. Еще одной фишкой оформления стало решение со скругленной нишей для ванны. Использование рельефного мелкоформатного керамогранита WOW Design в сочетании с боковым «проявочным» освещением из окна повторяет регулярный рисунок широких ламелей жалюзи. Финальным штрихом проекта оказалась картина Татьяны Радивилко над столом в кабинете.






















