
Асимметричный остров и желтые подвесы в интерьере просторной квартиры — проект студии дизайна In2design
У этого интерьера нестандартная история: команда студии In2design спроектировала салон красоты на севере Петербурга, а через полтора года заказчик попросил дизайнеров создать оформление квартиры для его семьи. Пожелания и вкусы клиента были понятны команде, поэтому Мария Нитишинская и Анастасия Постникова смело взялись за работу. По-настоящему комфортной эту квартиру в Петроградском районе делают скрытые технические приемы, деликатные акценты и мягкий свет.
- Локация: Санкт-Петербург
- Площадь: 108 м²
- Авторы: Студия дизайна In2design, Мария Нитишинская, Анастасия Постникова
- Фото: Александра Дуброва
- Стиль: Анна Крутолевич
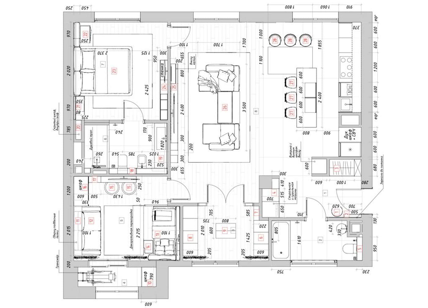
Первым делом Мария Нитишинская и Анастасия Постникова провели перепланировку, благодаря которой теперь квартира полностью соответствует пожеланиям клиента. Они выделили мастер-блок со спальней и ванной, организовали гардеробную и просторную кухню-гостиную, а также нашли место для детской. Шарм пространству придавали окна в стильных дубовых рамах и дополнительный оконный проем в санузле — находка для любого дизайнера. Эти детали продиктовали отделку порталов и оттенок бамбуковых жалюзи. Самой яркой частью общественного блока выступает отдельно стоящий остров-скала — скульптурный объем кажется арт-объектом из гостиной, но оказывается функциональным со стороны кухни. Он оснащен модулями под хранение, которые незаметны из-за фасада с акриловой облицовкой под мрамор. Источником вдохновения для него стали скалистые ущелья парка «Рускеала», а над реализацией конструкции работали сразу три команды специалистов: дизайнеры, мебельщики и каменщики. Как и остальную корпусную мебель, его основу выполнила мебельная компания TETRAPLACE. Мягкая группа отличается светлой палитрой, усиливающей контраст цветовой гаммы. Мастер-блок, наоборот, получился камерным, так как выполнен в любимых хозяином вариациях черного. Комната ребенка продолжает общее настроение дома: здесь нет нарочито «детских» красок — нейтральное оформление будет служить долгие годы. Финальными штрихами проекта выступили гардеробная с окном и ванная с напольной раковиной LOFT designe из бетона.

















