
Летящий текстиль и графичная мебель в интерьере небольшого шоурума — проект Александры Бурмистровой
Функциональное наполнение шоурума 404 not found полностью определило техническое задание от основательницы компании. Руководитель бренда Алена Феликсова предложила выстроить интерьер на основе собирательного образа клиенток — смелых девушек с яркой индивидуальностью и тонким вкусом.
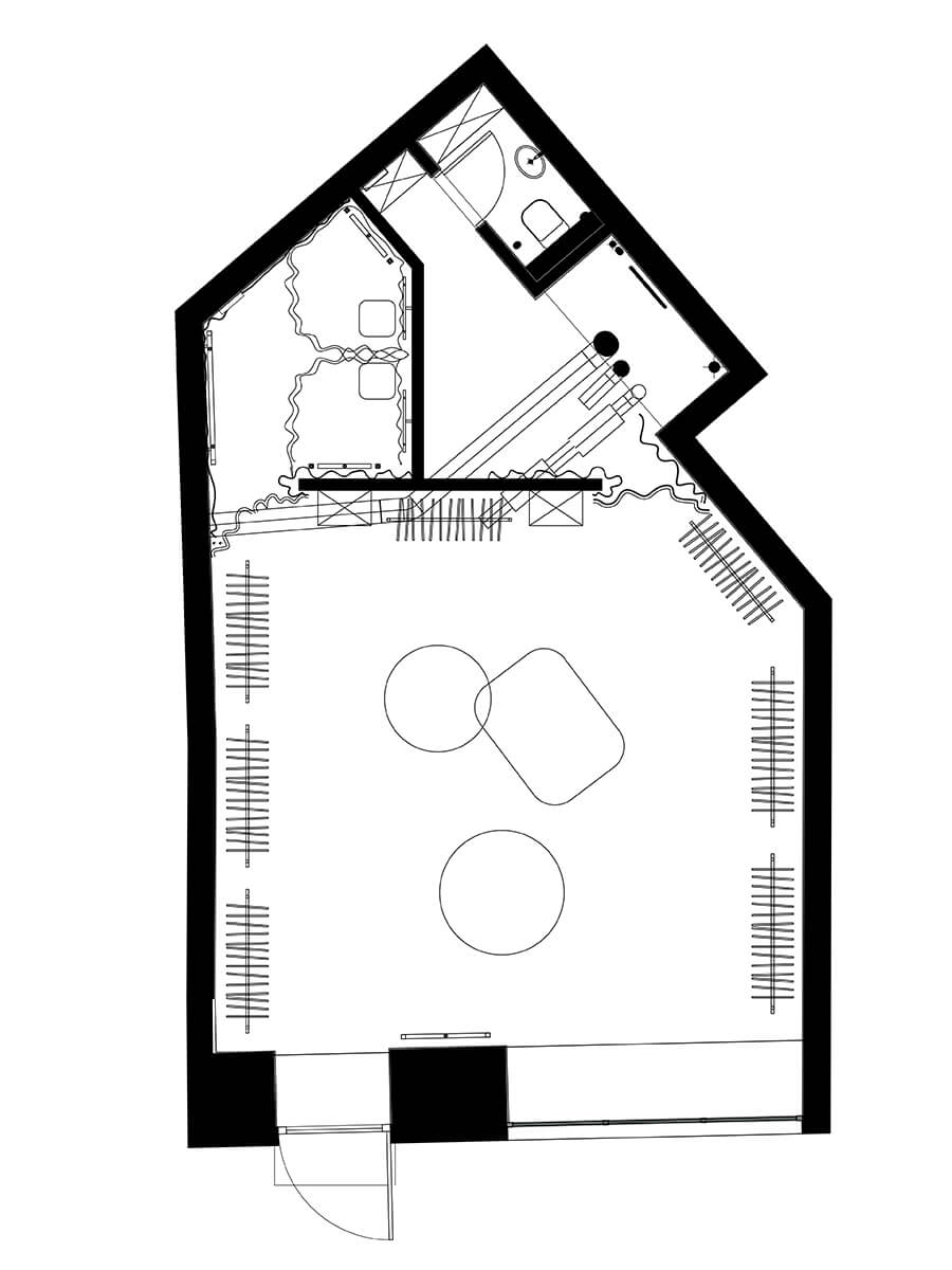
- Локация: Москва
- Площадь: 61 м²
- Авторы: Александра Бурмистрова
- Фото: Инна Каблукова
Объект попал в руки команды абсолютно пустым: на небольшом метраже требовалось разместить санузел, склад, примерочную и демонстрационный зал. Для основательницы бренда это уже не первый опыт сотрудничества с дизайнерами, поэтому у нее было сформировано четкое понимание цветовой гаммы и материалов. Александре Бурмистровой оставалось доработать концепцию и изменить не самое приятное впечатление Алены Феликсовой от взаимодействия с другими дизайн-студиями. Все хозяйственные блоки решили вынести в глубину помещения — этот прием помог выровнять геометрию торгового зала. Бежево-карамельная палитра отделки маскирует скромные размеры пространства и размывает линию стыка стен с оштукатуренными потолками. По бокам от центральной композиции с выполненными на заказ тумбами дизайнер расположила подвесные рейлы для одежды в глубоком черном цвете. Их оттенок дублирует покраску глянцевых лакированных стоек с подсветкой и встроенным хранением. Ритм графичных вертикалей продолжают строгие стеллажи и световые профили. Сделать шоурум более функциональным позволили высокие зеркала — их можно найти не только в общей зоне, но и в примерочных. Атмосферу последних подчеркнули летящие текстильные полотна.

















