
Светлый интерьер небольшой квартиры с ироничным декором — проект Зои Закалюжной
В оформлении этой квартиры, которую заказчик планировал сдавать в аренду, Зоя Закалюжная постаралась объединить комфортные зоны отдыха и функциональность на маленькой площади. Каждая деталь тут одновременно работает на атмосферу и практичность. Клиенты полностью доверились профессиональному мнению и поддержали все идеи дизайнера. В результате на компактном метраже команде удалось выделить сразу три полноценных помещения без потери ощущения простора и воздуха.
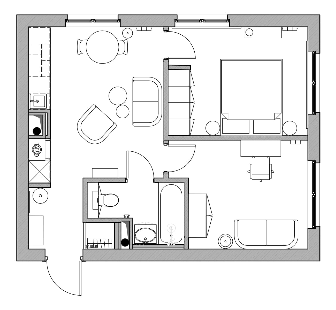
- Локация: Москва
- Площадь: 44 м²
- Автор: Зоя Закалюжная
- Фото: Наталья Вершинина
Главными достоинствами объекта были четыре окна, которые позволили дизайнеру провести здесь комфортную перепланировку. Ее задачей была организация полноценной кухни-гостиной. Перегородку между местом для готовки и санузлом решили перенести, чтобы сделать общественное пространство больше. Прихожая стала компактнее: часть ее площади заняла ниша под мебельную колонну, бытовую технику и полки с хранением. Зоя Закалюжная даже обращалась к юристу за консультацией, чтобы убедиться в законности такого зонирования. Замаскировать одну из дверей, визуально перегружавших интерьер, помогла технология скрытого монтажа. За счет нее дверное полотно кажется продолжением стены, покрытой обоями Caselio в тон. Акцентный синий цвет тоже появился в проекте не случайно: он оказался комплементарным оттенком для рыжеватых фасадов зданий, заметных из окон квартиры. Самым ярким предметом выступил выразительный ковёр с черно-белым узором, имитирующий коровью шкуру. Он играет роль доминанты, добавляющей динамики лаконичной отделке. Столовую группу тоже отличает необычное решение: обеденный стол освещает не люстра, а торшер. Для вещей будущего арендатора выделена ниша под фабричный шкаф в потолок — покупка готовой корпусной мебели призвана сэкономить бюджет. Ощущение обжитости в интерьер привнесли картина художницы Exantres и графика автора Embrasse par la muse с «Авито».



















