
Грубый камень и яркие предметы мебели в интерьере ливанского ресторана — проект Atelier130
Интерьер этого ресторана в Бейруте объединил детали из нескольких референсов — манхэттенских баров середины XX века, эстетики Уэса Андерсона и палитры американских закусочных. При этом владельцы заведения попросили команду Atelier130 отразить в оформлении дух ливанской культуры — за него отвечают обилие текстиля и грубые необработанные материалы. Акцентом пространства выступила двухэтажная каменная стена, которую заказчики запретили сносить: ее покрыли панелями из местного камня.
- Локация: Бейрут
- Площадь: 150 м²
- Автор: Atelier130
- Фото: Валид Рашид
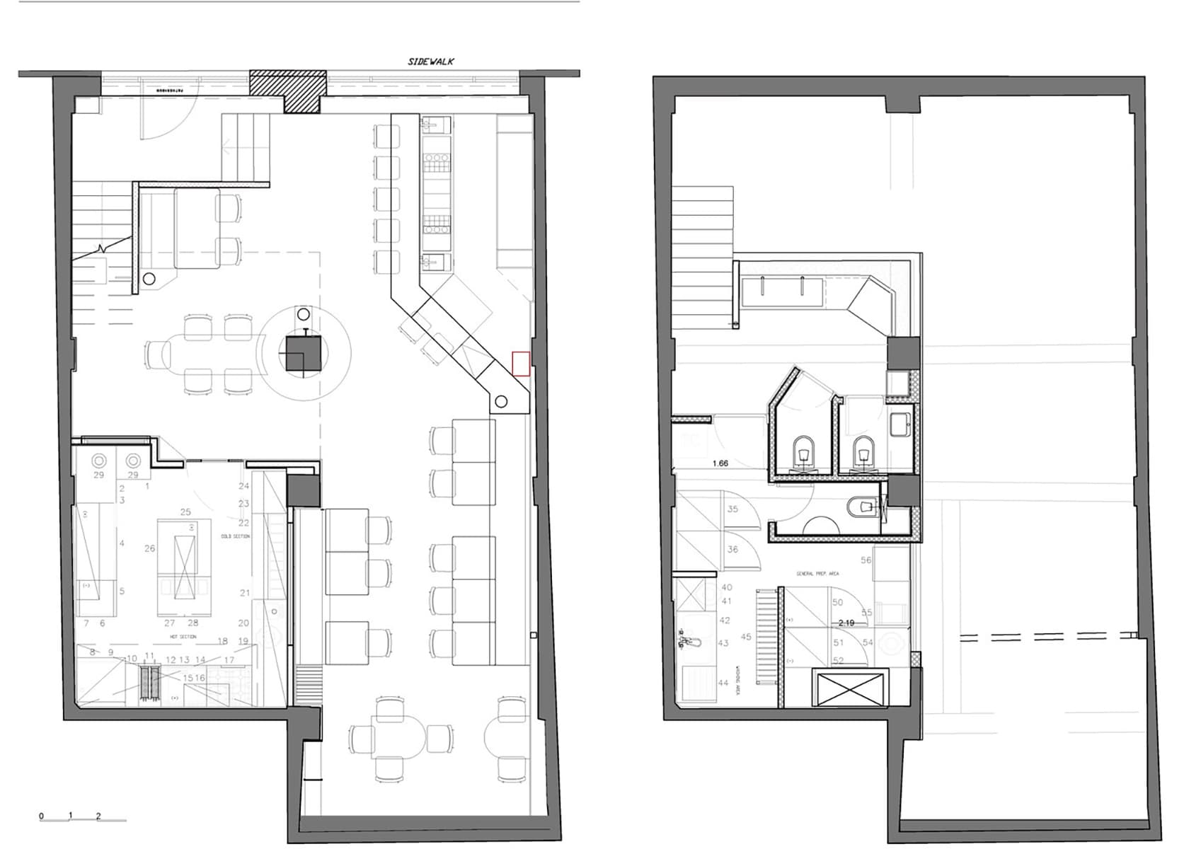
Изначально объект усложняли несущая колонна, мезонин сложной планировки и расположенный почти на метр ниже улицы первый этаж. Из-за заниженного пола особое внимание пришлось уделить мебели. Так, установленный на высоте 90 см скульптурный бар из стали выравнивается с уровнем земли. Чтобы избавиться от эха в помещении, дизайнеры обшили потолок акустическими пенопластовыми листами. Как и потолочное освещение, они почти не привлекают к себе внимания — разработанная студией 21dB система маскирует все коммуникации. Отделка стен природными материалами помогла замаскировать неправильную геометрию объекта: деревянные панели и декоративная штукатурка под бетон визуально размывают границы пространства. За теплой древесиной скрывается кухня, незаметная при взгляде из зоны посадок. Эти детали, как и каменные столешницы, произвели ливанские мастера: дизайнеры Atelier130 специально обратились к ним, чтобы поддержать локальные производства в условиях кризиса. Бархатистые стулья выполнены в горчично-желтых и серых оттенках, а барные табуреты обтянуты коричневой кожей. Главным украшением интерьера оказалась большая фреска, сюжет которой отсылает к полотнам Босха. Второй этаж ресторана отведен под входную группу и технические блоки с санузлами, гардеробной и кладовой.















