
Пурпурный стол, разноцветный мрамор и округлые формы в интерьере исторической квартиры — проект бюро NOWW Studio
Эта квартира, расположенная в доме 1912 года постройки, имела для команды NOWW Studio особую ценность. Дизайнеры создали интерьер, который отражает творческий характер заказчиков и идентичность исторического здания. Цветовая палитра стала важной частью проекта: она подчеркивает характерные черты пространства.
- Локация: Варшава
- Площадь: 60 м²
- Авторы: NOWW Studio
- Фото: NOWW Studio
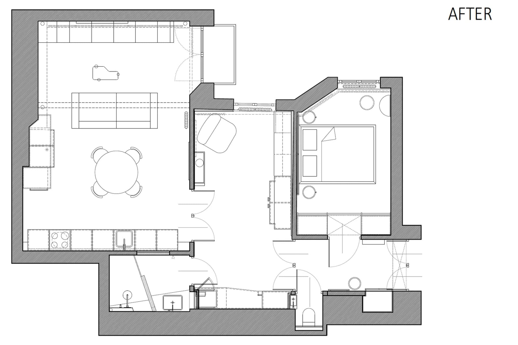
Сначала команда бюро укрепила существующие стены и потолки. Дверь в главный санузел была перенесена, а на ее месте установлено круглое окно. Спальня теперь занимает место прежней кухни. На полу уложен дубовый паркет в виде елочки. Чтобы добавить интерьеру индивидуальности и привлекательности, дизайнеры использовали для отделки стен зеленый и красный мрамор. Цветовую гамму дополняют более темные фризы, карнизы и лепнина. В общественной части квартиры расположены диван оливкого оттенка и пурпурная столовая зона, которую украшает необычное растение на столе. Деревянные полки и рейки добавляют помещению лаконичности. Кухонные шкафы изготовлены на заказ: их фасады сделаны из дерева, а столешница — из цельного гранита. Спальня выполнена в глубоком бордовом цвете в сочетании с коврами песочного оттенка. В холле дизайнеры установили уютное кресло для отдыха и небольшую тумбу, дополнив обстановку картинами. Другими акцентными элементами стали винтажные светильники из галереи Catawiki. Кроме того, в гостиной появилась работа Нормана Роквелла, а в спальне — искусство Магды Карпинской.












