
Нейтральная палитра и эргономичность в интерьере апартаментов для сдачи в аренду — проект бюро ASTROOM
Апартаменты для сдачи в аренду должны быть не только эстетичными, но и комфортными, поэтому команда бюро ASTROOM уделила особое внимание эргономике и планировке пространства. Проект однокомнатной квартиры в ЖК SLAVA реализован в концепции дерзкой современности и благородной классики. Благодаря сочетанию материалов и авторской мебели дизайнерам удалось реализовать сдержанный и статусный интерьер.
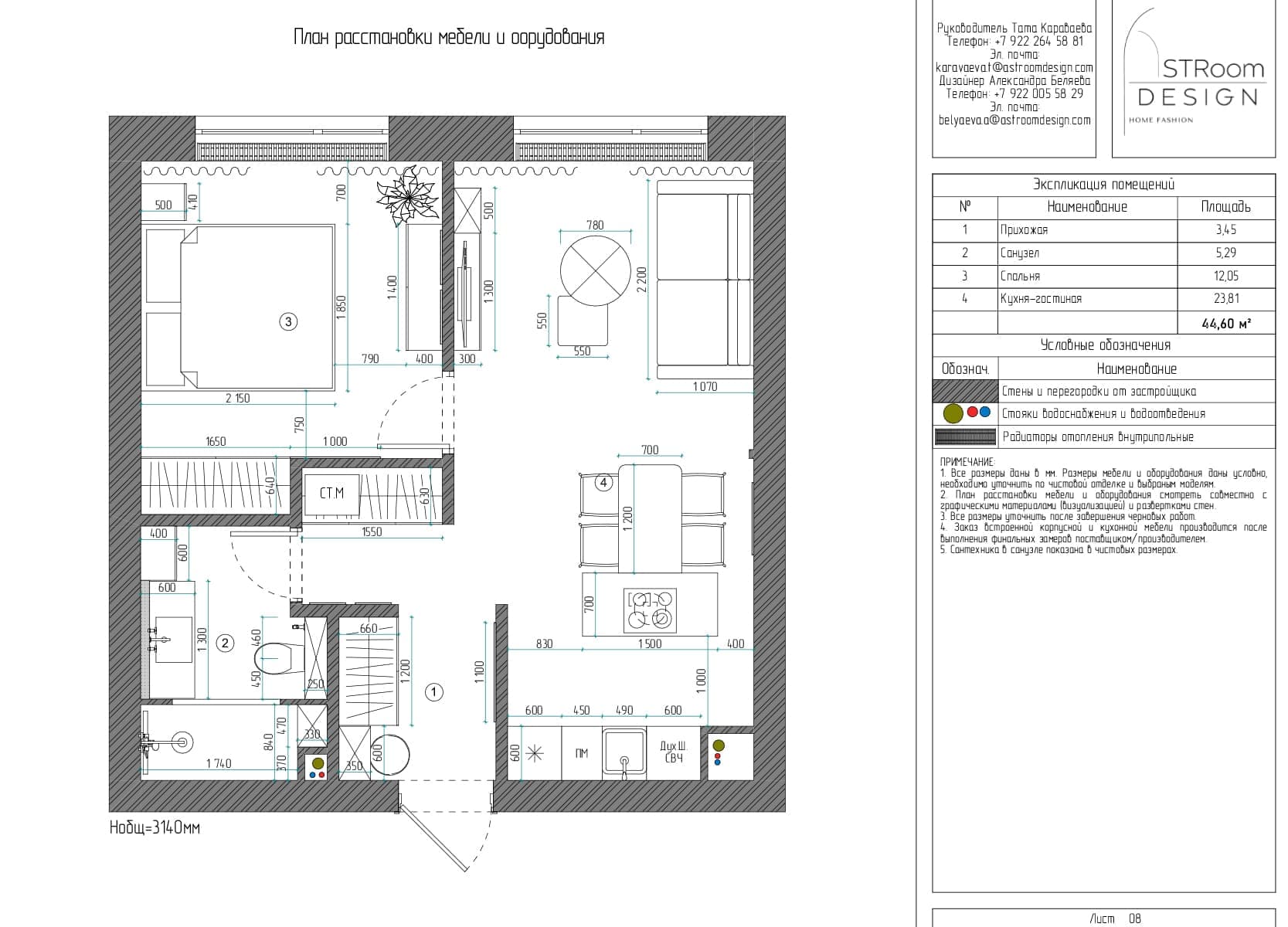
- Локация: Москва
- Площадь: 45 м²
- Авторы: бюро ASTROOM
- Фото: Александр Бурнатов
- Стиль: Диана Мухтарова
Перед командой бюро стояла задача создать проект вне конкуренции. В основу интерьера легла синергия философий двух домов моды — Ralph Lauren и Hermès. Панорамное окно в пол пропускает в комнату много естественного свет. Дизайнеры предусмотрели несколько сценариев освещения для более пасмурных дней, разместив на потолке люстру в форме одуванчика. Выполненная по эскизам команды бюро корпусная мебель в гостиной гармонирует с диваном Saiwala в велюровой обивке кораллового оттенка. Обеденная зона состоит из стульев Top Concept и деревянного стола, придающих пространству ощущение уюта. Цветовая палитра спальни более спокойная и монохромная. Кровать и мебель изготовлены на заказ, а тумба и настольная лампа Garda Decor придают комнате элегантности. Плетеный прикроватный короб перекликается по оттенку с диваном в гостиной. В качестве декора выбрана авторская керамика Леонида Малютина и Екатерины Гусевой. Картина Тани Борджия дополнила композицию помещения. Грамотный подход к планировке и материалам позволил дизайнерам создать самодостаточный интерьер, транслирующий в своих образах аутентичность и любовь.













