
Световое окно, отсылки к японской культуре и природные материалы в интерьере квартиры для молодой пары — проект бюро RR Architects
Заказчики этого проекта — молодая пара, работающая в IT-сфере, — обратились к бюро RR Architects за созданием функционального пространства с продуманной планировкой. Отталкиваясь от запроса клиентов, команда избегала обилия орнаментов и использовала спокойные лаконичные текстуры, чтобы квартира стала местом для отдыха от суеты. Главным референсом для проекта послужила японская культура, что выражается в сочетании дерева и бетона.
- Локация: Санкт-Петербург
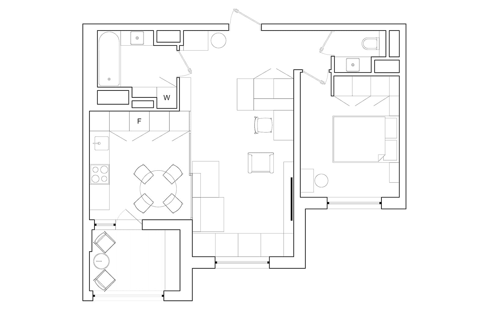
- Площадь: 56 м²
- Авторы: бюро RR Architects
- Фото: Катя Литке
Команда бюро провела перепланировку без переноса основных зон, объединив кухню, гостиную и прихожую. Санузел удалось расширить за счет коридора — теперь в нем также разместились постирочная и система хранения. Кухню и гостиную разделяет раздвижная перегородка: это отсылка к японским дверям сёдзи с непрозрачной, но пропускающей свет рисовой бумагой. Дизайнеры интегрировали в проект единую конструкцию, которая включает в себя рабочее место, книжный стеллаж, комод и шкаф для одежды. С помощью нее общественная зона отделена от коридора. Корпусная мебель выполнена по авторским эскизам в столярной мастерской — это позволило сформировать гармоничное и удобное пространство. Центральное место в гостиной занимает диван annki studio, дополненный журнальным столиком ТОК. Бра &Tradition и ваза Alvar Aalto украшают кухню. В спальне использована монохромная палитра, а стулья и пуф Delo органично вписаны в зону отдыха. В санузле команда бюро предусмотрела световое потолочное окно, которое имитирует естественный свет.













