
Терраса с сезонной кухней, комната для йоги и панорамный аквариум в интерьере квартиры для большой семьи — проект Алексея и Екатерины Савицких
Алексей и Екатерина Савицкие создавали интерьер этой квартиры в минском ЖК «Олимпик Парк», вдохновляясь природным ландшафтом вокруг комплекса. Раньше семья жила в небольшой квартире, и у дочерей была одна комната. В новом помещении дизайнеры предусмотрели отдельное пространство для каждой из девочек, места для отдыха и занятий йогой, а также просторную террасу.
- Локация: Минск
- Площадь: 303 м²
- Автор: Алексей Савицкий
- Фото: Андрей Кот
- Стиль: Екатерина Савицкая
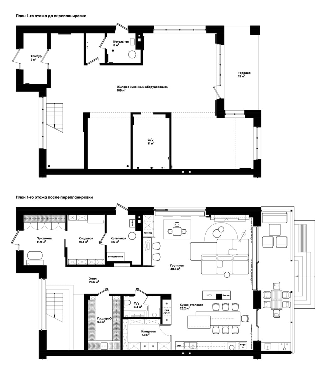
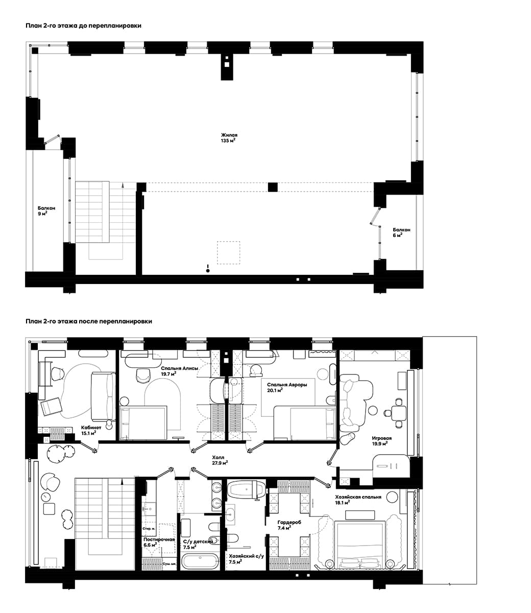
Для Алексея и Екатерины Савицких важно подстраивать исходную планировку под семью. В этом проекте они расширили террасу за счет объединения двух лоджий: теперь здесь предусмотрены зона отдыха и сезонной кухни. На втором этаже у лестницы организовано открытое пространство для занятий йогой и расширенная спальня, в которой демонтированы панорамные окна в пол. Дизайнеры замаскировали все несущее конструкции под предметы мебели. Колонны стали неотъемлемой частью пространства, визуально разделяя помещение на отдельные зоны. Интерьер выполнен преимущественно в светлых тонах, дополненных яркими цветовыми акцентами. В гостиной установлено декоративное панно RACHULKA бренда VUZEL. При разработке проекта заказчики хотели дополнить пространство картиной Кирилла Орсика «Инь-Ян. Цвет белый», олицетворяющей женское и мужское начало. В дальнейшем работа отлично вписалась в колористику интерьера. Ярким объектом также стал панорамный аквариум, встроенный в колонну на первом этаже. Он выполнен в стиле акваскейп: среди мангровых веток можно заметить постоянное движение и трансформацию.
























