
Природа в городе: спокойный и теплый интерьер для семьи с кошкой — проект Екатерины Шевелевой
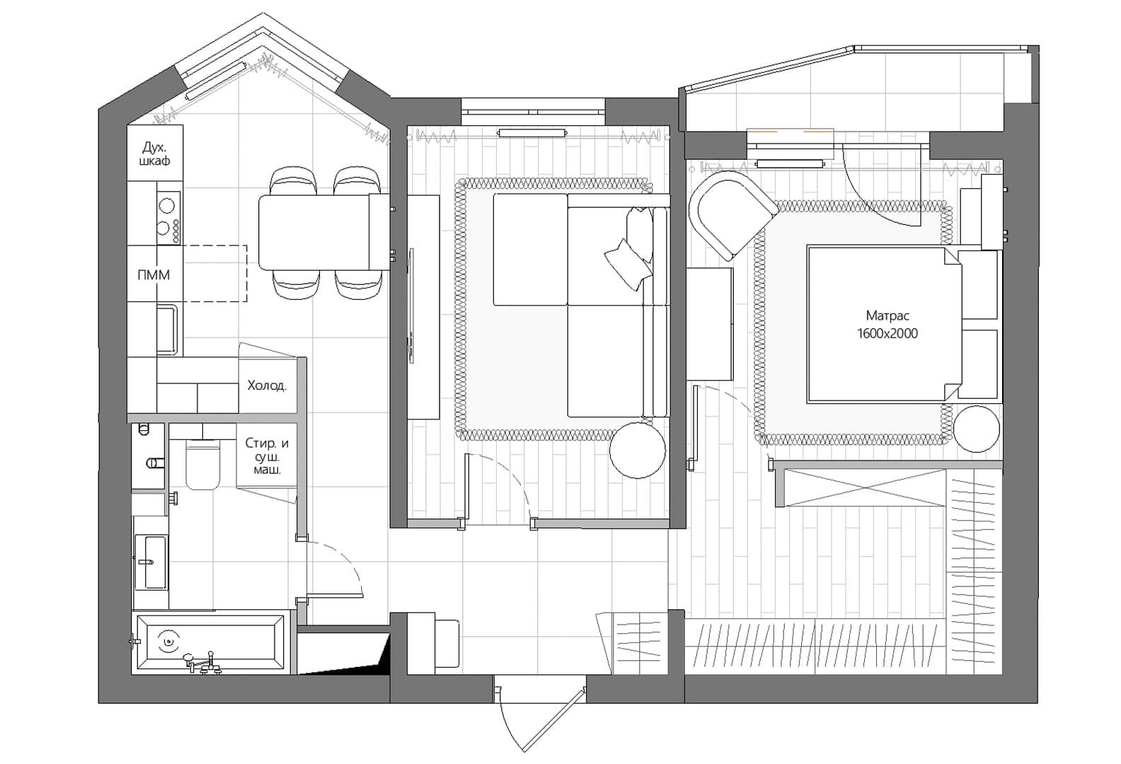
Клиенты Екатерины Шевелевой обратились к ней с пожеланиями трансформировать двухкомнатную квартиру в панельном доме. Они обратились к дизайнеру с просьбой спроектировать современное комфортное пространство для жизни семейной пары и их кошки.
- Локация: Москва
- Площадь:53 м²
- Автор: Екатерина Шевелева
- Фото:Антон Лихтарович
- Стиль:Анна Хаждогова
Изначально объект представлял собой типичную «бабушкину» квартиру, но наполненную естественным светом. На этапе поиска подходящего планировочного решения дизайнеру удалось значительно улучшить функционал помещения. Так как вход в квартиру находится прямо напротив одной из комнат, ее назначение решили поменять: вместо спальни тут появилась гостиная. Приватная комната была перенесена подальше от посторонних глаз, в более тихую и удаленную от шумных посиделок часть дома. Часть вытянутой спальни решили отвести под просторную эффектную гардеробную — она решает вопрос хранения для целой семьи. При этом гостиная стала центром проведения времени с друзьями за просмотром фильмов и настольными играми, а отдельная кухня с эркерным окном — местом кулинарных экспериментов главы семьи и уютных вечеров. Визуальная концепция интерьера выполнена в теплых обволакивающих оттенках с натуральным шпоном дуба и текстурой травертина. Особый шарм ему придают подсветки, а зеркала добавляют воздуха. Карнизы выкрасили в тон стенам: такое решение зрительно приподнимает потолок. В качестве напольного покрытия идеально подошел ламинат с широкой плашкой, по фактуре имитирующей паркетную доску.
















