
Винтажные светильники в интерьере, вдохновленном Лазурным берегом — проект студии Dizzo
После неудачного сотрудничества с предыдущими дизайнерами молодая семья с дочкой обратилась к студии Dizzo для создания уютного интерьера квартиры с использованием в меру насыщенных цветов. Дизайнерам удалось воплотить все запросы заказчиков и реализовать светлое пространство с жизнерадостной атмосферой.
- Локация: Минск
- Площадь: 73 м²
- Авторы: студия Dizzo
- Фото: Александра Холерик
- Стиль: Алёна Верш
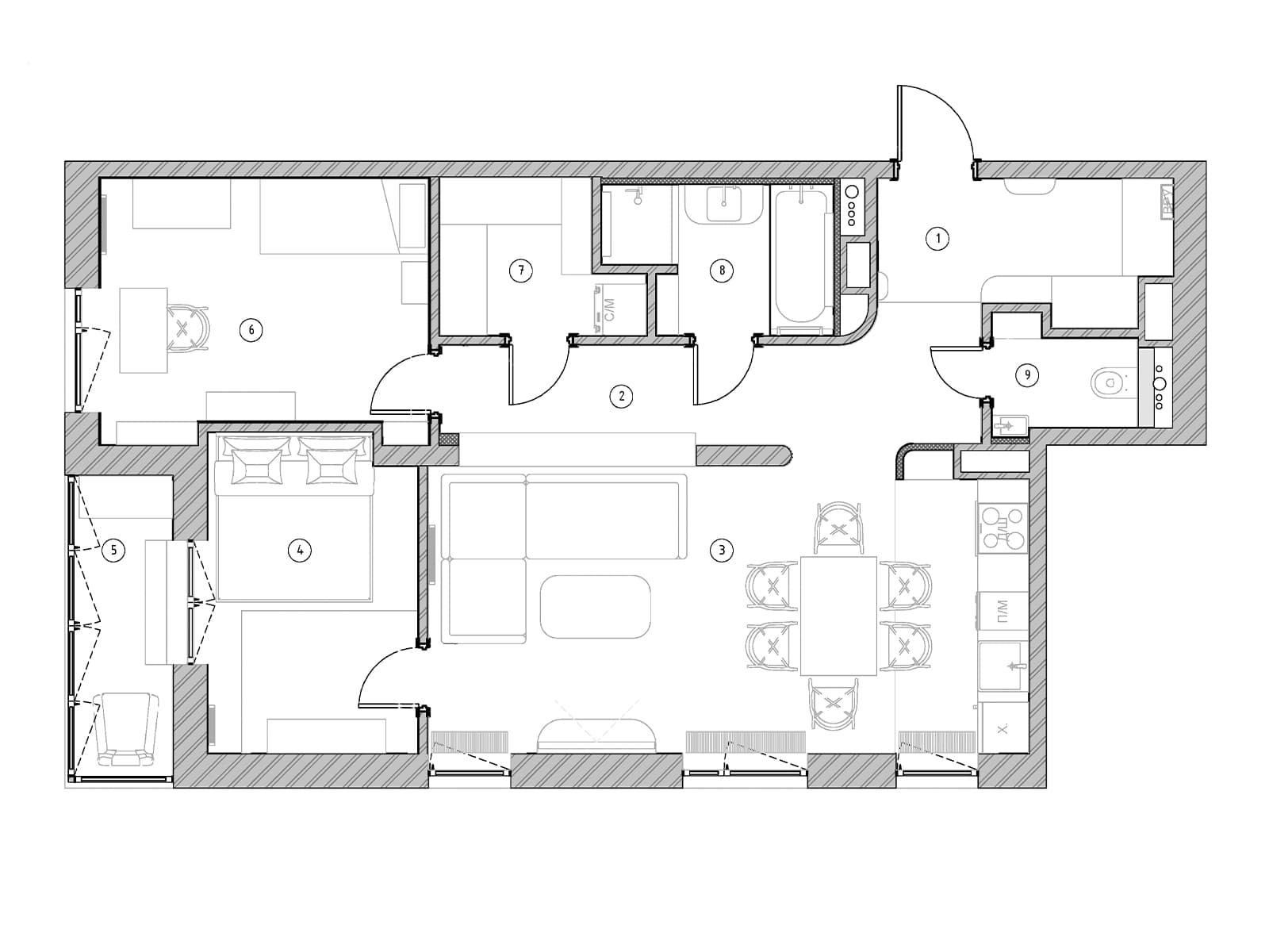
Главной задачей команды оказалось проектирование открытой планировки с местом для всей семьи. Кухня-гостиная стала центральной частью квартиры. Спальня побольше досталась дочери, а комната поменьше — родителям. Акцентами общественной зоны выступают сочный терракотовый диван и обеденный стол. Вокруг них расположены тумбы и зеркала, выполненные по эскизам дизайнеров. Особое внимание в проекте уделено освещению. Винтажные светильники Meblo Harvey Guzzini и Flower Pot &Tradition подчеркнули основные линии гостиной. В спальне использованы более яркие зеленые и оранжевые оттенки. Кровать установлена на небольшом подиуме для размещения системы хранения. Единая стилистика квартиры сохраняется за счет плавных и мягких форм. Для усиления средиземноморской атмосферы использованы деревянные элементы в теплых оттенках и керамическая плитка с контрастной фугой на швах в ванной комнате. Предметы искусства и декоративные элементы завершили композицию пространства и добавили ему уюта.
















