
Фортепиано, коллекции книг и винтажный декор в интерьере для историка моды — проект Маши Бондаренко
Эта однокомнатная квартира в Санкт-Петербурге наполнена интересными деталями, которые отражают любовь к Парижу и профессиональные интересы владельца — историка моды и коллекционера. Друг дизайнера Маши Бондаренко обратился к ней, чтобы реализовать современное пространство для комфортного отдыха и удаленной работы. С помощью текстур и минималистичной мебели ей удалось создать интерьер во французской стилистике.
- Локация: Санкт-Петербург
- Площадь: 45 м²
- Автор: Маша Бондаренко
- Фото: Катерина Литке
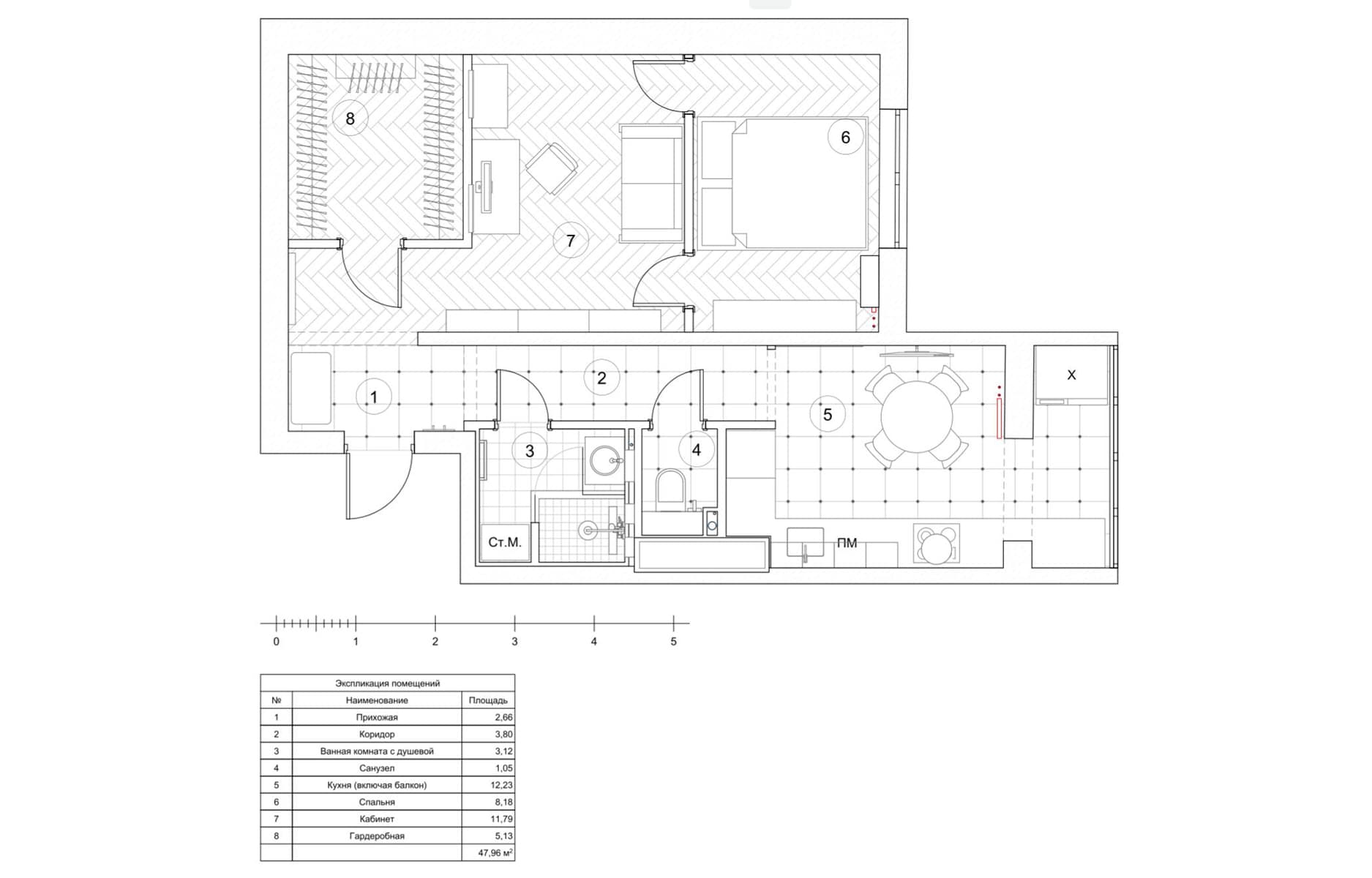
Ключевым ограничением при работе над планировкой стала несущая стена, которая не позволяла создать открытую зону. Вдоль нее размещены шкафы с личными коллекциями заказчика. Фортепиано под полками стало запоминающейся деталью в интерьере. Чтобы увеличить и разделить пространство, дизайнер присоединила к кухне с мраморной столешницей лоджию, где скрыт холодильник. Центр комнаты освобожден для размещения полноценной обеденной зоны. Подоконник, выполненный из цельного розового мрамора, служит акцентной деталью в помещении. Маша Бондаренко соединила кабинет и гостиную. В этой зоне отображена французская стилистика с помощью молдинга и дивана ARTU возле прохода. Настенный ковер RESA RED CROSS добавляет пространству аутентичности. Доступ к двум сторонам кровати, занимающей всю ширину помещения, открыт за счет распашных стеклянных дверей. Они отделяют спальню и пропускают много естественного света в пространство. Дизайнер наполнила квартиру предметами локальных брендов и художников. Скульптура Андрея Гангана гармонирует со светильником Musa Vibia, а живопись Инги Павловой украшает стену.













