Уютный двухэтажный коттедж для семьи архитектора — проект Юлии Скачковой
Уютный двухэтажный коттедж для семьи архитектора — проект Юлии Скачковой
Этот загородный дом под Петербургом Юлия Скачкова реализовала для себя и своей семьи, поэтому работа отличалась от привычных проектов, выполняемых для заказчиков. Подход к задаче был похожим: дизайнер составила техническое задание и в процессе изменила структуру здания с одноэтажной на двухэтажную. Чтобы дом не казался слишком простым и заметным, конструкцию чуть «утопили» в землю — теперь она выглядит как современное европейское жилье.
Локация: Ленинградская область
Площадь: 298 м²
Авторы: Юлия Скачкова, архитектурная студия Мера
Фото: Иван Сорокин
Стиль: Диана Ремизова
По словам дизайнера, во главе угла при проектировании стояли объемы и формы, диалог которых подсказал способ вписать здание в ландшафт. Изначально хотелось, чтобы вся жизнь протекала на одном уровне, но ограниченная площадь участка не позволила воплотить эту задумку.
Юлия Скачковаархитектор, руководитель архитектурной студии МераЯ решила, что хочу максимально функциональный дом, где функционализм проявлялся бы именно в стиле. Также я не хотела ничего лишнего. Если что-то можно не делать, значит, этого и не должно здесь быть. Каждое решение должно иметь значимость и обоснование.
Планировка
Отправной точкой при создании архитектурной концепции были стороны света. За счет работы с ними лучи утреннего, дневного и вечернего солнца проникали в кухню, столовую, гостиную и спальню, а кабинет был ориентирован на север. Изюминкой коттеджа выступила кровля с заметным консольным свесом. Каждый из выносов по двум фасадам составлял более трех метров, поэтому перед дизайнерами была поставлена сложная инженерная задача. Конструктору пришлось рассчитать навес несколько раз, чтобы убедиться в надежности решения. Ступени облегченной лестницы в интерьере выполнены в схожем стиле. За ними разместилось большое окно: благодаря расстоянию между ступенями в холл поступает максимум света.
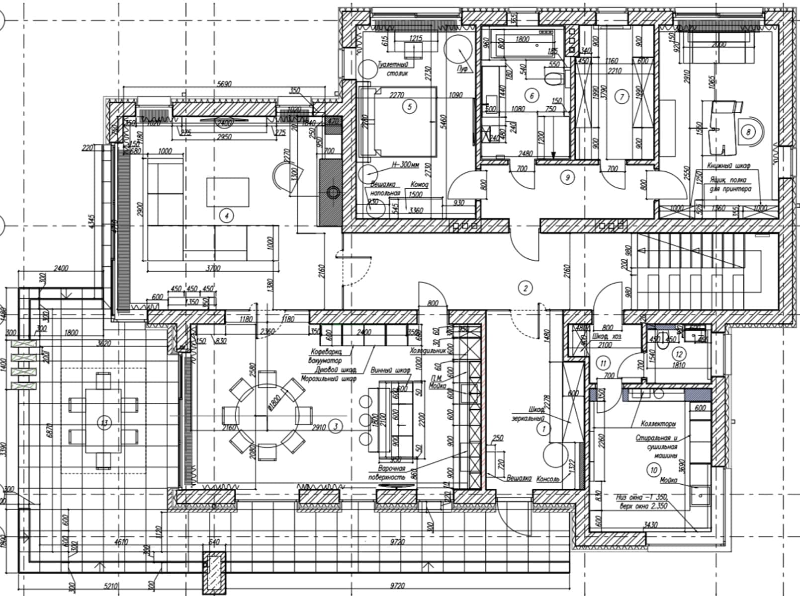
План первого этажа с мебелью
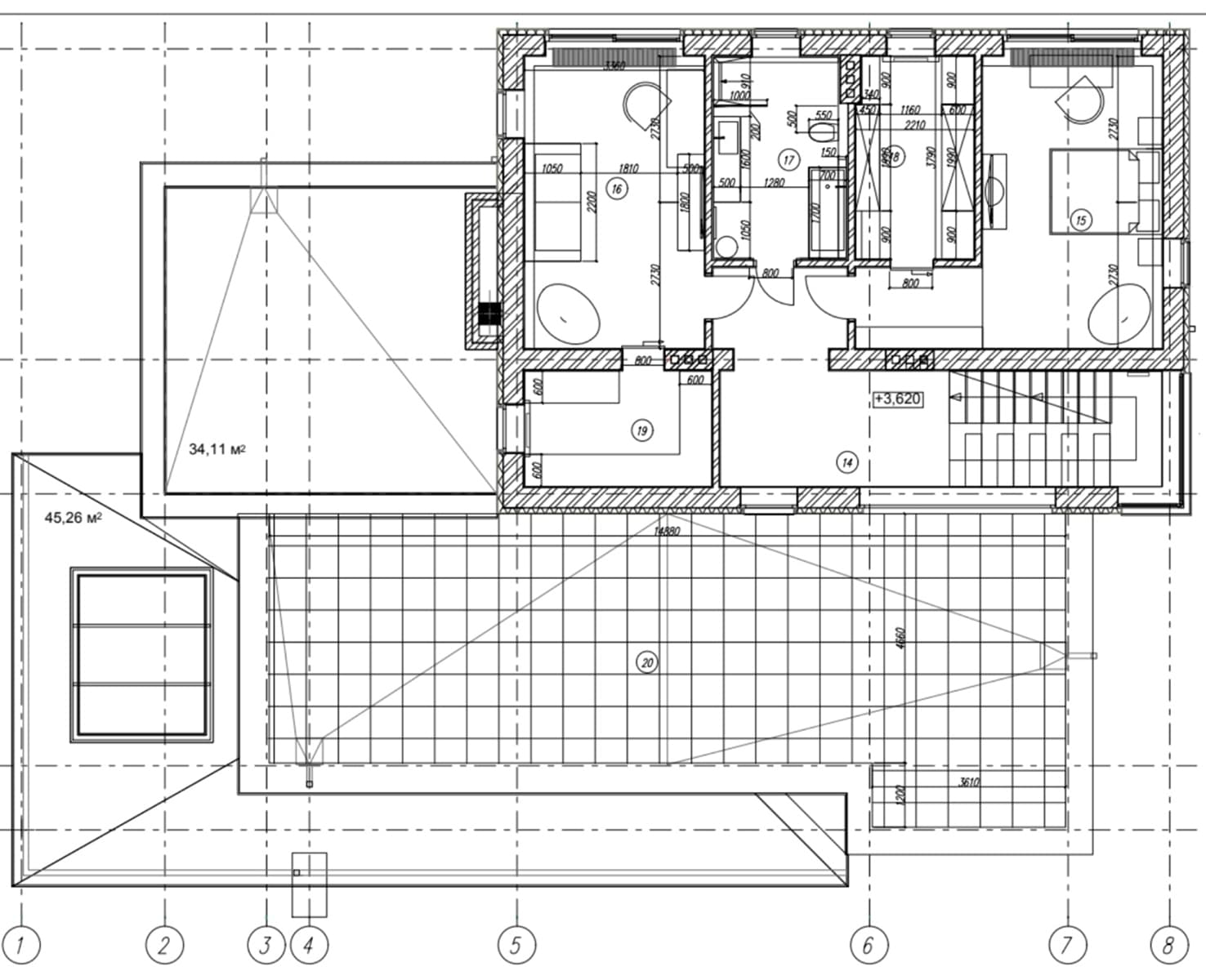
На первом этаже расположились общественный блок, мастер-спальня, кабинет, санузлы и воздушный холл. Второй уровень отведен под детские — там выделены жилая комната и тренажерный зал, а также помещение, которое можно переоборудовать в дополнительную спальню.
План второго этажа с мебелью
Остекление дома предусматривает максимальную панорамность, так как почти все окна выходят на солнечную сторону. Выход на террасу получился практичным: здесь достаточно просто сдвинуть центральную часть и получить доступ к зоне отдыха. Летом пространство почти всегда открыто, а зимой там стоит коляска.
Интерьер и решения
Палитра и контекст
Ключевые объемы проекта выделены композиционно и подчеркнуты яркими материалами — темным кирпичом и сталью кортен. Фактуру металла выбрали за счет практичности и долговечности, а также благодаря возможности создать строгий акцент. Так, палитра отражает главные оттенки окружающей природы Ленинградской области: рыжина кортена и остальные тона отделки сочетаются с ландшафтом.
Над лестницей можно увидеть картину авторства художницы Маши Янковской, которая написала ее на заказ.
Именно детали формируют в доме теплую обволакивающую атмосферу — графичные элементы перекликаются в разных комнатах. Например, дизайнерский радиатор Caleido с рифлением зрительно поддерживает необычные стены в детском санузле и графичный светильник Nemo.
Кухня-гостиная
Объединенное общественное пространство должно было стать местом досуга для всех поколений семьи. Функциональные зоны разделены высокими стеклянными перегородками, которые не скрадывают ощущение естественного света. Они также изолируют шумы и запахи готовки. Планировку гостиной определил угловой диван Arflex, по бокам от которого разместились кофейный столик Laskasas, комод и стеллаж Sangiacomo.
Из открытой столовой со шпонированным столом Potocco и обеденными креслами Molteni видно зажженный камин и большой телевизор. Портал камина Юлия Скачкова проектировала сама — он панорамный и трехсторонний, за счет чего на композицию открывается обзор из разных точек гостиной. Его отличает эффект парящего бразильского камня: над топкой заметна сплошная полоса слэба. Подходящий материал было сложно найти из-за требуемых для раскроя размеров.
Контрастный кухонный гарнитур с барной стойкой Nolte Küchen выделяется на фоне светлой отделки. Дизайнер отказалась от проектирования мебели по авторским эскизам, так как все необходимые позиции нашлись в наличии у брендов.
Оформление второго уровня выдержано в нейтральной цветовой гамме, так как все помещения хотелось сделать трансформируемыми. Сдержанная отделка не будет спорить с яркими игрушками и аксессуарами и станет спокойным фоном для развития ребенка. Когда для детских спален создавался проект электрики, размещение розеток продумывали специально под перестановку мебели — так, чтобы здесь было комфортно и малышу, и подростку. Даже в детской гостевой комнате установлен набор предметов для взрослого, чтобы родители или няня могли оставаться на ночь.
Мастер-спальня
Ключевым ориентиром при наполнении приватных зон для команды проекта была функциональность, поэтому помимо места для сна в мастер-блоке найдутся системы хранения, зеркало и вешалка Living Divani для вещей быстрого доступа. Для комфорта хозяйки тут предусмотрены большой пуф и туалетный столик Novamobili. Кровать с изогнутым синим изголовьем подбирали у того же бренда. Почти вся мебель в комнате — с итальянскими корнями, в том числе комод для белья Sangiacomo и кресло Potocco.
Здесь продумано сразу несколько сценариев освещения — в основном с верхней декоративной подсветкой. Архитектурной строгости спальне добавляют монохромные постеры и асимметричные светильники flos.
Лаконичная рабочая зона — образец места для уединения в большой семье. Здесь нет ничего лишнего, а удаленность от шумной кухни-гостиной превращает кабинет в идеальный уголок для работы и отдыха. Письменный стол Minotti, диван Felis и стеллаж Alf DaFrè не перегружают пространство и сохраняют в комнате ощущение простора.