
Атмосферное заведение правильного питания – проект DA bureau
Новое заведение Матильды Шнуровой, которое представляет собой гибрид ресторана и арт объекта, посвящено здоровому образу жизни. Меню полностью исключает сахар, глютен и лактозу. Студии DA bureau нужно было придумать нестандартное интерьерное решение, соответствующее концепции кафе.
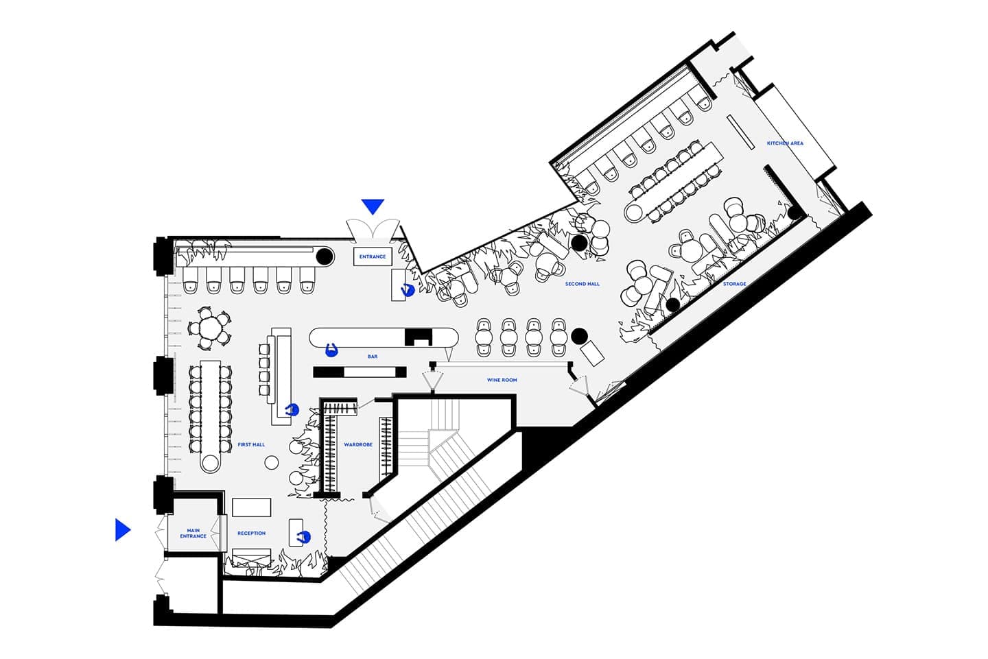
- Локация: Санкт-Петербург
- Площадь: 304 м2
- Авторы: DA bureau (Анна Львовская, Борис Львовский, Федор Горегляд, Мария Романова, Юлия Кубицкая)
- Фото: Сергей Мельников
В питерском кафе Bio My Bio стилистически продумана каждая деталь: от световой схемы до оформления меню. При создании регулируемого цветного освещения команда DA bureau вдохновлялась инсталляциями Джеймса Таррелла и работами Олафура Элиассона. На выбор сюрреалистичного вида растений для декора повлияли кампейны от GUCCI и картины с изображением цветов художника Йонаса Вуда. К изготовлению листьев были привлечены декораторы из Мариинского театра. Также в проекте присутствуют отсылки к русской народной культуре: рисунок Виктора Васнецова в виде пергаментного свитка на одной из стен, стойки и барные стулья из необработанных стволов тополя.



















