
Современный интерьер квартиры с большими окнами — проект Виктории Вольвач
Заказчиками этого интерьера выступили творческие супруги, занимающиеся семейным бизнесом и часто летающие в командировки. Их главными пожеланиями к наполнению квартиры были умиротворяющая атмосфера и организация пространства с акцентом на вид из панорамных окон. Это уже не первый проект, реализованный дизайнером для этой семьи, поэтому Виктория Вольвач четко понимала ожидания пары от оформления и сразу отказалась от ярких цветов и лишних деталей.
- Локация: Москва
- Площадь: 155 м²
- Автор: Виктория Вольвач
- Фото: Ольга Меклесцева
- Стиль: Варвара Калицкая
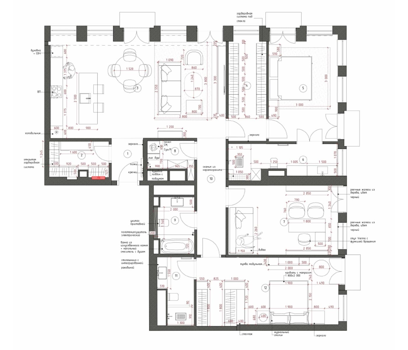
Главным источником вдохновения для будущего интерьера оказалась архитектура жилого комплекса, которая требовала сдержанных форм и лаконичных решений. Избыточный декор, лепнина и парадные латунные детали смотрелись бы здесь неуместно, поэтому дизайнер обратилась к современной стилистике. Предложенная застройщиком планировка не соответствовала логике движения и образу жизни семьи со взрослой дочерью, так как включала в себя несколько тесных и перегруженных перегородками комнат. Чтобы оптимизировать пространство, часть конструкций пришлось демонтировать: это позволило увеличить площадь ванных и спален. В объединенной кухне-гостиной есть пять окон, поэтому для регулирования естественного света требовалось не только текстильное обрамление порталов, но и горизонтальные жалюзи. Их подобрали в тон мебели, чтобы поддержать целостность оформления. Светло-коричневый оттенок фасадов кухонного гарнитура, отдельно стоящего острова и тумб перетекает из одного помещения в другое. Мотивы натуральных материалов продолжают поверхности с активной текстурой камня. Размыть границы между стенами и потолком призвана элегантная светлая отделка. Виктория Вольвач с особым вниманием подошла к разработке дополнительного освещения: минималистичные треки не перегружают композицию. Сакральное значение мастер-спальни воплотилось в динамичной организации буферных зон. Например, мастер-ванна не остается изолированной, а легко присоединяется к спальне посредством двустворчатых дверей. За тактильность и ощущение тепла в приватных зонах отвечают контрастные деревянные панели. Максимальный комфорт супругов дизайнер обеспечила с помощью системы «умный дом».






















