
Интерьер просторной квартиры для стильной женщины из Минска — проект Надежды Тимохиной
К заказу на оформление квартиры для одного человека дизайнер Надежда Тимохина подошла с особым вниманием: заказчица — увлеченная модой женщина — хотела получить светлое и легкое пространство. Ее главным пожеланием стало ощущение воздуха, которого удалось добиться за счет светлой палитры и продуманной системы скрытого хранения для внушительного гардероба.
- Локация: Минск
- Площадь: 97 м²
- Автор: Надежда Тимохина
- Фото: Виталина Ворошкевич
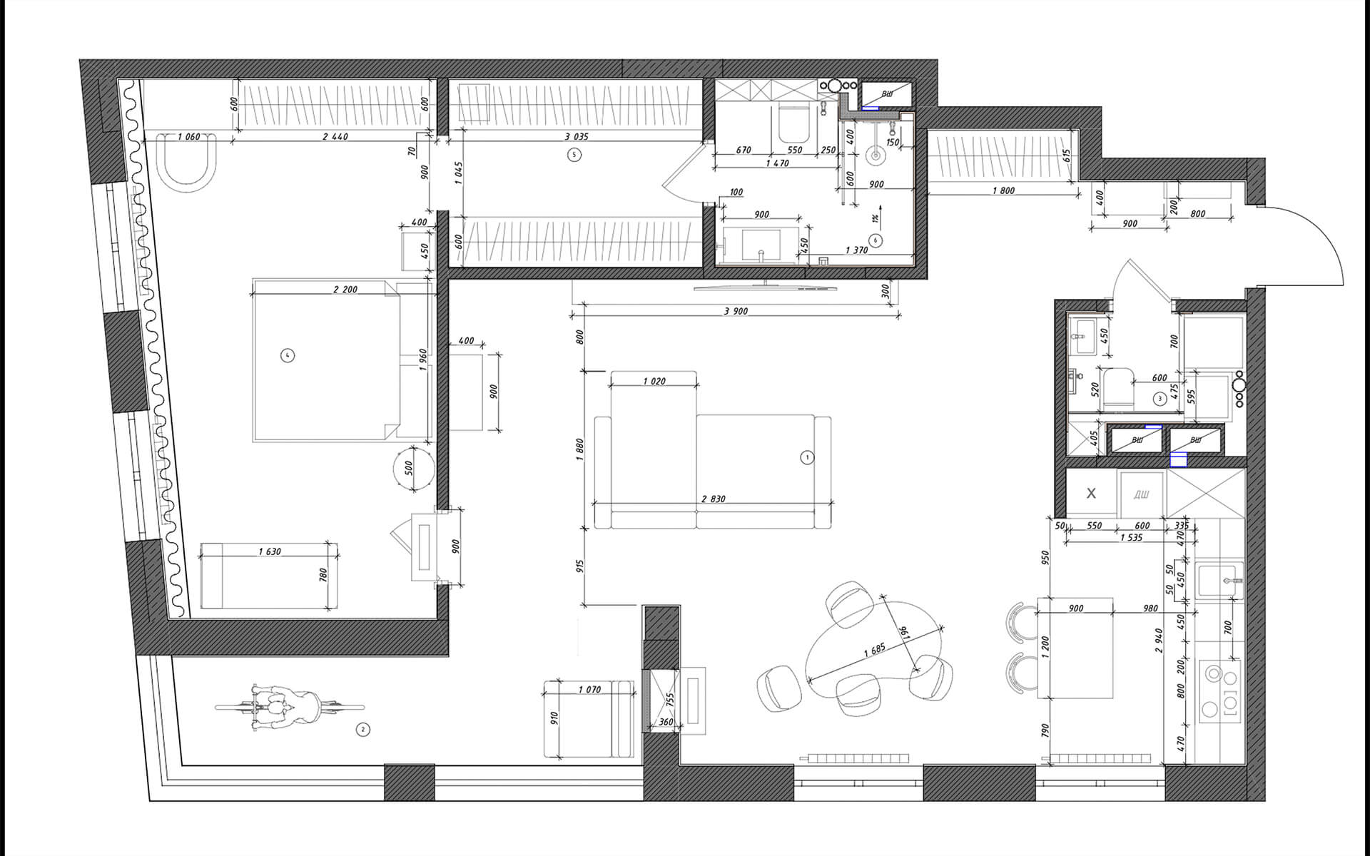
Квартира сдавалась со свободной планировкой и намеченными зонами санузлов, что позволило адаптировать пространство под нужды хозяйки. Самое большое помещение занял объединенный общественный блок с прихожей и лоджией. Акцентом проекта стал отдельно стоящий шкаф, выполненный по авторским чертежам: лаконичные геометричные линии сочетаются с выразительной ручкой-скульптурой из натурального камня, создавая визуальный и тактильный контраст. Скрытые системы хранения органично интегрированы в пространство — например, за мягкой группой с объемным белым диваном или в кухне, где шкафы и техника спрятаны в нишу напротив окна. Благодаря этому основная зона остается легкой, а фартук и полка для декора выходят на первый план. Почти вся корпусная мебель была выполнена на заказ, что позволило точно учесть пропорции и функции. Вторая часть квартиры отдана под мастер-блок с проходной гардеробной и ванной с душевой. Искусство придало интерьеру характер: в гостиной появилась картина белорусского художника Руслана Вашкевича, ставшая смысловым центром и задавшая пространству особый ритм.
















