Элегантный интерьер пентхауса с бильярдной в центре Москвы — проект дизайн-студии ММ interior
Элегантный интерьер пентхауса с бильярдной в центре Москвы — проект дизайн-студии ММ interior
Респектабельный интерьер этой двухэтажной квартиры в Москве дизайнеры разрабатывали для семьи из трех поколений. Клиенты хотели получить стильное оформление, в котором у каждого будет личное пространство. Так как заказчики часто бывают в поездках, процесс согласования требовал от команды студии ММ interior особой внимательности. Все решения тщательно проверяли и согласовывали несколько раз. В проекте было важно найти баланс между индивидуальными комнатами и общей концепцией. Остальные пожелания клиентов сводились к вместительным системам хранения, а также комфортной зоне для игры в бильярд и шахматы.
Локация: Москва
Площадь: 318 м²
Авторы: дизайн-студия ММ interior, Маргарита Харламова и Мария Стаферова
Фото: Екатерина Гейц
Стиль: Юлия Дикунова
Глобальную перепланировку решили не проводить, поэтому удобство сценариев движения определяла выполненная на заказ встроенная мебель. Дизайнеры внимательно изучили особенности объекта: пространство со вторым светом усложняли опуски потолка в некоторых зонах. Поскольку квартира находится на верхнем этаже дома, высота здесь занижается по мере приближения к внешним стенам квартиры.
Маргарита Харламова и Мария Стаферовадизайнеры студии ММ interiorВ процессе работы над проектом мы находились на Бали, поэтому окружающая нас среда нашла отражение в интерьере. Здесь гармонично сочетаются природные элементы, детали стиля джапанди, балийские акценты. Все вместе они создают ощущение уюта и баланса.
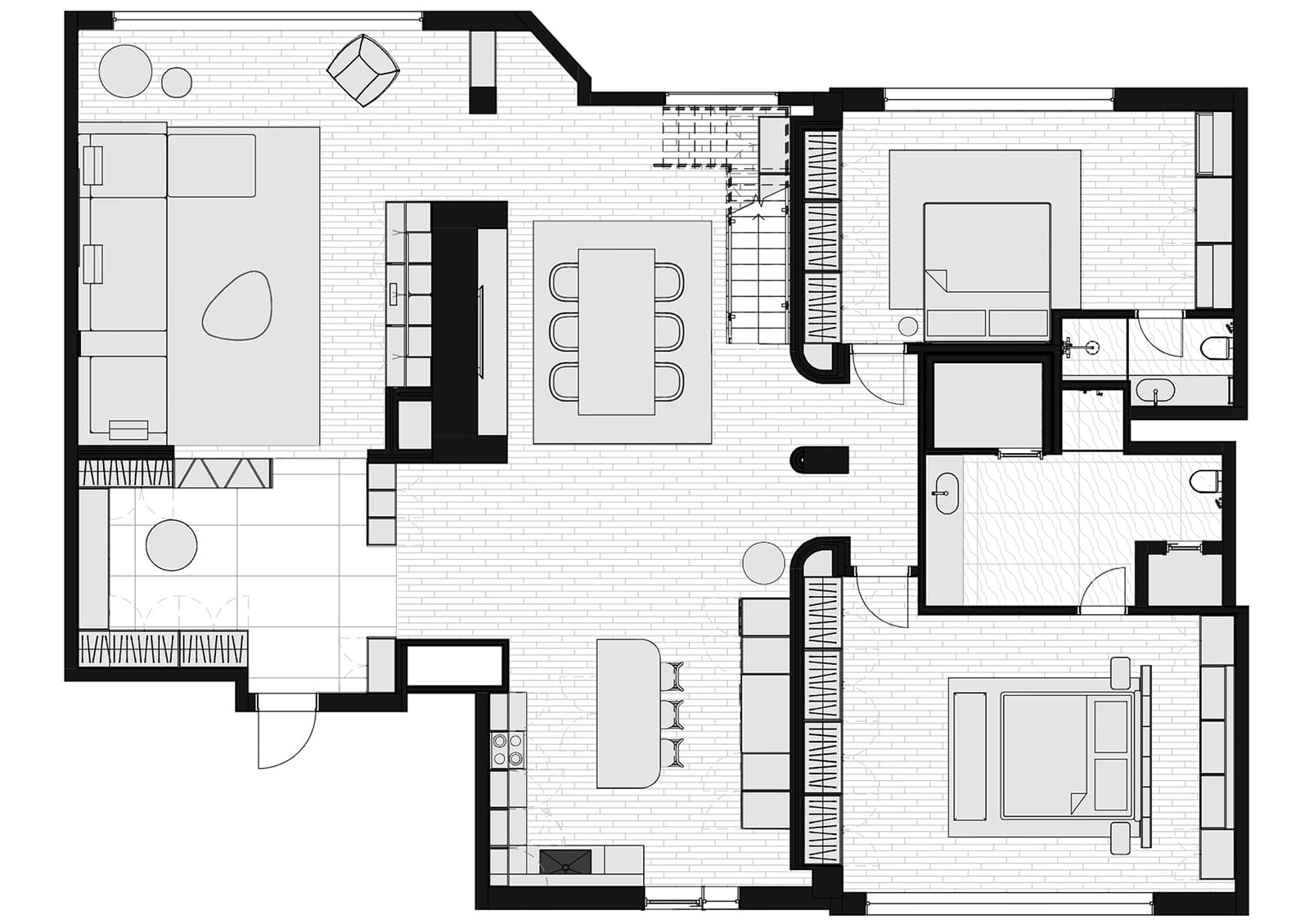
Планировка
Заказчик хотел сохранить существовавшие перегородки и напольные покрытия, поэтому перепланировку решили не проводить. Главными задачами стали реорганизация пространства и грамотное зонирование. Исходные данные объекта сделали этот проект непростым в реализации: посреди общественной зоны стояли несущие перегородки, а двусветная гостиная требовала особого подхода к проектированию.
План первого этажа с мебелью
Визуальной легкости в интерьер привнесли скругленные стены и мягкие формы мебели. Они заметны как в крупных объемах вроде лестничного пролета, так и в деталях — например, в изголовье кровати и подвесных светильниках.
План второго этажа с мебелью
Сами дизайнеры называют гордостью проекта учтенную специфику удаленной работы, которая не помешала реализации всех задумок. Команда столкнулась со сложными узлами и необычными архитектурными приемами, но они не повлияли на результат.
Интерьер и решения
Палитра и контекст
При выборе отделки дизайнеры старались не использовать лишних материалов: на стенах появляются только два оттенка краски, декоративная штукатурка и керамогранит Italon с имитацией мрамора. Единство отделки позволило добиться ощущения цельности пространства. Несмотря на обилие окон, некоторые помещения квартиры оставались довольно темными, поэтому оформление хотелось сделать максимально светлым и дополнить его продуманными контрастами.
Добиться желанной выразительности команде студии помогла эффектная текстура искусственного камня. Широкоформатный подошел для пола в прихожей и фартука кухни — такой прием призван обеспечить эффект монолитности крупных форм. Собрать воедино все элементы интерьера дизайнерам удалось благодаря симметрии, сбалансировавшей свет и воздух.
Кухня-гостиная
Главным акцентом объединенного общественного пространства на первом этаже оказалась монолитная стена с выступающим камином. Для большей лаконичности в нее решили интегрировать систему хранения с контрастной ТВ-зоной. Гармонию в интерьере поддерживают продуманные элементы: массивный диван Montiero с деревянной вставкой и панель с мягкой подсветкой. Маргарита Харламова и Мария Стаферова называют диван знаковым предметом дома: они тщательно согласовывали все детали, от оттенка обивки до глубины швов. Теперь возле него собираются все члены семьи и их гости. Завершают оформление выразительные детали — написанная на заказ картина и живые растения. Любимые фикусы заказчиков не пережили ремонт, поэтому их заменила декоративная олива, которой досталась роль визуального центра гостиной.
Обеденный стол в квартиру перекочевал из прошлого дома заказчиков. Его дополнили зеленой мягкой мебелью — стульями с бархатистой обивкой и креслами konyshev в тон. Все материалы команда студии подбирала лично, отправляя фото и видео клиентам. При этом дизайнеры находились в одной стране, хозяева — в другой, а бригада в Москве продолжала работать сообща. Однажды согласование кресел пришлось проводить прямо «в поле»: их привезли к подъезду комплектатора, чтобы она на улице проверила удобство и качество ткани.
Все системы хранения для этой квартиры изготавливали на заказ. Внимательный подход к деталям позволил создать вневременные и долговечные решения, которые смогут совмещать в себе несколько функций. Реализацию кухонного гарнитура доверили российскому производству. Конструкция состоит из трех функциональных частей — колонны с бытовой техникой ASKO, острова и углового блока с рабочей поверхностью.
Особой гордостью дизайнеров в хозяйском блоке выступило органичное разделение зоны отдыха и гардеробной. Интересным здесь получилось шпонированное изголовье кровати Montiero — ему досталась роль фокусной точки пространства, которая объединила изящные прикроватные тумбы ТОК. Дополнительное хранение здесь встроено в шкафы, симметрично расположенные по бокам от навесного комода. Финальными деталями интерьера выступили картина с подсветкой и декор бренда Woon.
Кабинет и досуговая зона
Зона отдыха на втором этаже квартиры стала воплощением представлений заказчиков о досуге и развлечениях: внимание гостей тут сразу привлекает бильярдный стол, окруженный низкими шпонированными панелями на стенах. Их мягкую природную текстуру поддерживает подсветка. Основным материалом стала светлая древесина дуба с песочно-дымчатым сукном. Расположенный по соседству столик для игры в шахматы смотрится камерно и уютно благодаря круговой композиции, которая привлекает мягкими формами. Мотивы скругленных линий поддерживает стеклянное ограждение лестницы с вкраплениями перфорированного металла. Оно пропускает свет, одновременно создавая сложную игру теней на окружающих поверхностях. Добиться настолько четкого радиуса в материале перфорированного металла было непросто — требовался постоянный контроль со стороны дизайнеров.
Спокойную атмосферу в удаленном от общего пространства кабинете заказчиков задает изготовленная на заказ корпусная мебель. Для отдыха от насущных дел тут предусмотрен компактный диван Rete с приятной на ощупь обивкой. Единственной цветовой доминантой оказалось рабочее кресло Egg.