Вневременные решения в уютном интерьере квартиры для интеллигентной семьи — проект Polukhina Design
Вневременные решения в уютном интерьере квартиры для интеллигентной семьи — проект Polukhina Design
Владельцы этой элегантной квартиры в историческом центре Москвы — влюбленная в театр и путешествия семья из четырех человек. Супруги хотели получить уютное пространство для временных приездов в столицу, которое стало бы для них альтернативой отелю. При этом от безжизненного бутикового оформления решили отказаться в пользу сдержанных природных материалов и элементов классического стиля. Характер проекта отражают эффектные детали: мрамор Гриджио Оробико, лепнина ручной работы и объемные «парящие» шкафы.
Локация: Москва
Площадь: 140 м²
Авторы: Polukhina Design, Татьяна Полухина
Фото: Елизавета Гуровская
Стиль: Варвара Калицкая
Несмотря на гостевое назначение интерьера, внушительный метраж квартиры хотелось использовать рационально. Так, команда студии Polukhina Design интегрировала в пространство встроенные системы хранения, чтобы они не скрадывали ощущение масштаба.
Татьяна Полухинадизайнер, основатель студии Polukhina DesignМы превратили контраст в равновесие и гармонию, старались соблюдать бюджет проекта, но не уходили в полную экономию, особенно в отношении отделочных материалов и оборудования. В интерьере много необычных деталей — например, австрийская люстра Kalmar 1980-х годов и бра из мрамора и латуни.
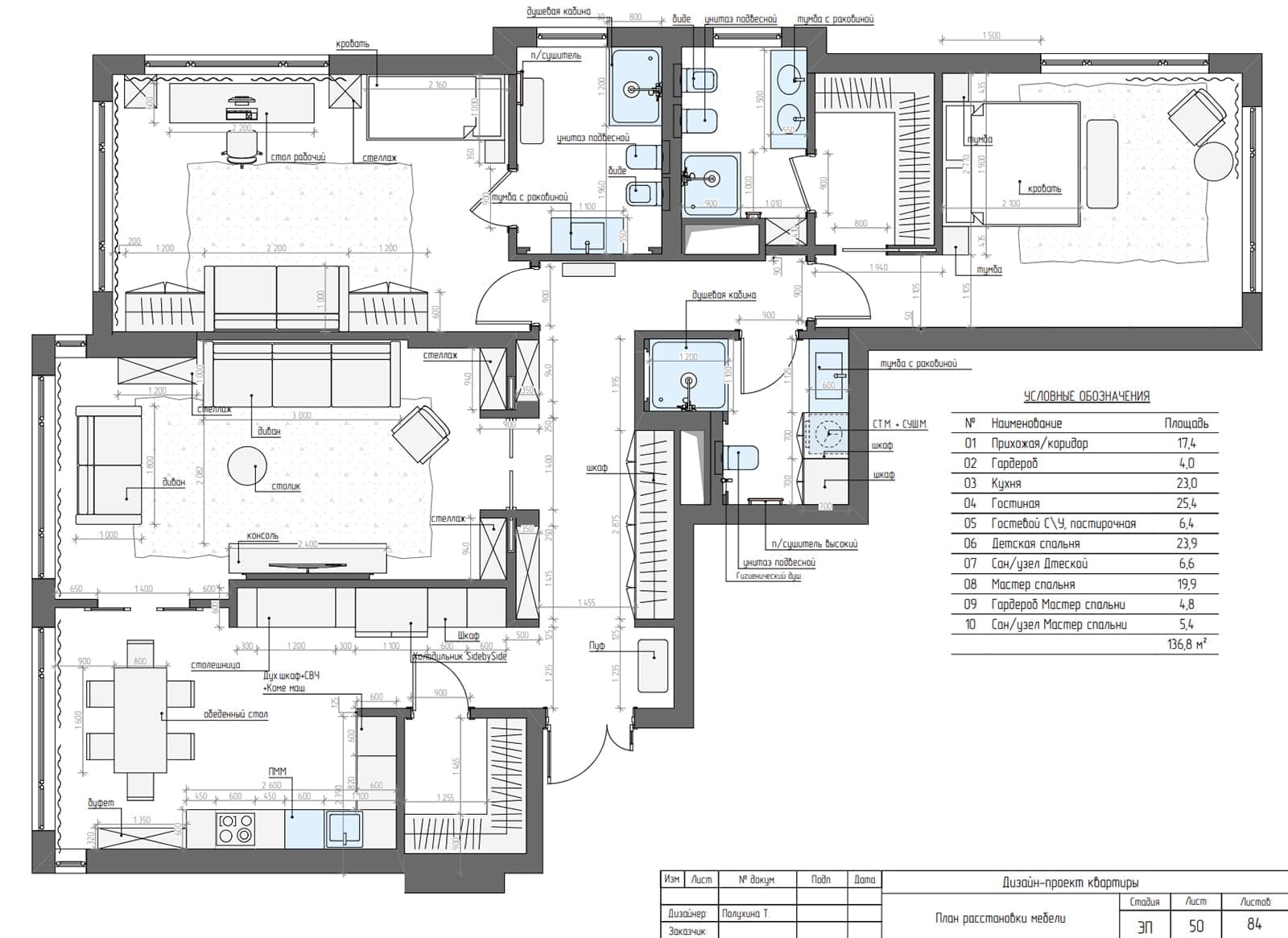
Планировка
Главным пожеланием клиентов к идеальной планировке стала функциональность: в квартире решили выделить три санузла, связанные друг с другом гостиную и кухню, мастер-блок, и вместительные системы хранения для одежды и обуви. Организовать пространство и логику движения помог большой коридор. В нем были заранее предусмотрены ниши под шкафы, чтобы центральная ось не нарушалась лишними объемами. Напротив входной группы расположился гостевой санузел с увеличенной душевой зоной.
План квартиры с мебелью
Благодаря изменениям границ помещений кухня стала шире, а гостиная обрела более уединенный характер. Чтобы сохранить ощущение воздуха и масштаба пространства, дизайнеры объединили обе комнаты раздвижными дверями и организовали круговое движение. На месте изначально прилегающего к прихожей санузла появилась гардеробная, а большую ванную комнату с двумя окнами разделили на две приватных. Теперь они соседствуют с детской и хозяйской спальнями.
Интерьер и решения
Палитра и контекст
В основу интерьера легли традиционные отделочные материалы — паркет Finex, матовая краска Little Shop холодных оттенков для стен и фасадов мебели, итальянский керамогранит и латунь. Главным принципом при выборе деталей для проекта была «честность»: заказчики сразу рассказали о своей нелюбви к пластику и репликам, поэтому в оформлении использовались только оригинальные предметы. При этом поиск подходящих элементов оставался рациональным: на простых решили сэкономить, а базу искали «на века».
Всю корпусную мебель для проекта изготавливали в московских столярных мастерских: каждая полка в шкафах продумана под определенную вещь, а для всех чемоданов отведено несколько зон хранения. Даже для обуви команда Polukhina Design предусмотрела сразу два встроенных шкафа в холле.
Гостиная
Центром притяжения дома выступает гостиная, в которую ведут сразу два прохода — из холла и кухни. Она задумывалась исключительно для отдыха и досуга, поэтому оформление хотелось сделать сложным и радующим хозяев.
Чтобы добиться такого эффекта, дизайнеры обратились к балансу противоположностей: теплые оттенки древесины контрастируют с холодным оттенком стен. Здесь встречаются все характерные для этого проекта материалы, от массива и шпона до латуни. Серый диван с электроприводом команда нашла у бренда O’Prime, журнальный столик — у BoConcept, а элегантное кресло — у Dantone Home.
Декоративное освещение обеспечивают винтажная люстра Correct Form и бра Hudson Valley Lighting , а общее — лаконичные гипсовые светильники.
Фишкой интерьера общественной зоны выступил микс светлого и темного дерева в фасадах шкафов и буфета. Каждый предмет создавался с учетом специфики материала — например, геометрию ТВ-тумбы выстраивали с учетом диагонального рисунка шпона.
Кухня-столовая
Функциональное место для готовки и совместных трапез заказчики решили вынести в отдельное помещение, а для удобства доставки продуктов у него тоже есть отдельный вход. Вневременный характер оформления подчеркивают монохромные решения: пол покрыт черно-белой плиткой, а стены — белой краской. Интегрированный в нишу гарнитур фабрики «Мария» из шпона и эмали перекликается остальными фактурами за счет столешницы из искусственного камня с активным рисунком. Вся техника была встроена в основной объем, чтобы не привлекать лишнего внимания.
Большая обеденная группа в проекте выстроена вокруг изящного стола с графичным основанием. Татьяна Полухина продолжила палитру землистых тонов: темно-зеленый оттенок обивки стульев поддерживает обрамление зеркальных фасадов буфета. Завершить образ пространства призвана нарядная люстра Newport.
Спальня
Несмотря на то что в комнате хозяев нет лишних предметов, к ее наполнению дизайнеры подходили ответственно. Пространственную композицию подчеркнул оформленный темным деревом проем, связывающий спальню с прилегающей гардеробной. Этот прием также помог визуально выровнять сложную геометрию помещения. Пространство залито естественным светом благодаря двум большим окнам, которые решили не закрывать текстилем. Его здесь заменила конструкция из скругленных шпонированных панелей и штор на электрокарнизе. Они подчеркнули форму комнаты и потолка, вытянув ось композиции. Вертикаль поддержали трубчатые подвесы — их отраженный свет формирует камерную атмосферу. Радиаторы здесь тоже необычные: команда проекта подыскала вариант в терракотовом оттенке.
В спальне установлен только боковой свет — подсветка потолка, подвесы и бра, — а функциональные потолочные лампы были вынесены ко входу.
Добиться удобных сценариев движения позволило размещение двуспальной кровати в углу. Чтобы она смотрелась в интерьере соразмерно, изголовье решили увеличить и дополнить вертикальной прострочкой. Его прямоугольную форму подчеркивают контрастный кант из массива, интегрированные розетки и выключатели. Самым интересным предметом мастер-блока стал оригинальный шкаф-зеркало в спальне. Он появился как ответ на просьбу хозяйки об удобном хранении косметики и парфюмерии. Татьяна Полухина нашла прототип, который подходил под эту задачу, и доработала его. Для внутренней отделки подошла велюровая ткань, идентичная обивке кораллового кресла. Зеркало, закрепленное на петлях, превратилось в динамичный фасад, и в результате получится функциональный декоративный стеллаж.
Ванная комната
Акцентом мастер-ванной служит мозаичный фартук за умывальником и в душевой зоне. Дизайн этой мозаики создавался с нуля: вместе с керамистом специалисты Polukhina Design искали ритм для паттерна, делали выкрасы и схему раскладки. Неожиданной проблемой стало разорение керамической фабрики под Екатеринбургом — именно она должна была произвести авторскую мозаику, но сырье просто осталось лежать на складе без обжига. Затея удалась благодаря энтузиазму бывших сотрудников завода, которые вышли с дизайнерами на связь и закончили мозаику самостоятельно. Из-за задержки поставок реализация идеи заняла шесть месяцев но результат стоил затраченного времени. Тумба под раковины тоже была спроектирована по авторским эскизам. Чтобы визуально облегчить конструкцию и не перекрывать зону у окна, передние углы предложили скруглить — получилась изящная форма с ретро-деталями.
Интерьер гостевого санузла транслирует атмосферу театра через небанальные ассоциации — мерцающий в зеркалах свет, сочетание дорогих оттенков дерева с изумрудом, мрамором и золотом. Торжественная обстановка появилась ненамеренно: дизайнеры и заказчики совпали в любви к динамичным и «лишенным быта» пространствам.