
Льняная люстра, репродукция картины и природные цвета в интерьере квартиры в Новой Москве — проект Веры Ильинчик
Заказчик обратился к Вере Ильинчик с просьбой создать интерьер квартиры для сдачи в аренду, в которой через несколько лет будет жить его сын. При разработке пространства в жилом комплексе в Новой Москве дизайнер вдохновляясь близлежащим лесопарком. Она использовала натуральные материалы и природную цветовую гамму, которая отражает окружающую среду и создает атмосферу загородного дома.
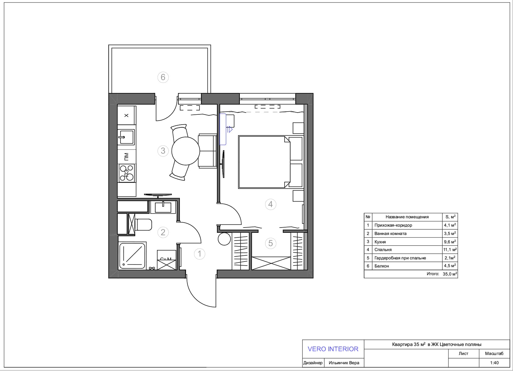
- Локация: Москва
- Площадь: 35 м²
- Автор: Вера Ильинчик
- Фото: Егор Воробьев
Вера Ильинчик с особым вниманием подошла к разработке системы хранения. Нишу под шкаф она немного углубила в сторону спальни, а также предусмотрела вместительную гардеробную. Для реализации единой стилистики дизайнер использовала глубокий синий оттенок, напоминающий цвет моря. Изюминкой проекта стала отделка вагонкой, обработанной специальным раствором для долговременной эксплуатации. Светлое дерево в сочетании с белой мелкоформатной плиткой Kerama Marazzi создает атмосферу загородного дома. В открытой части квартиры центральное место занимают обеденный стол и стулья из массива и шпона. Фасады нижних кухонных шкафов выполнены в темном синем оттенке, который появляется и в спальне. Люстра, изготовленная из льна, добавляет комнате легкости и уюта. Настенные бра, покрытые латунью, украшают спальню и гармонируют с оттенком стены, в то время как прикроватные тумбы из дерева подчеркивают композиционное решение помещения. Акцентом в спальне стала репродукция графики «Ascension du 26 septembre 1876, 700 mètres», выполненная архитектором Альбером Тиссандье: она разместилась над изголовьем кровати. В небольшой санузел дизайнер интегрировала все необходимое, включая стиральную машину, душевую кабину и раковину. За счет грамотной планировки эта зона получилась функциональной и при этом не теряющей привлекательности.















